The Acorn Group is London’s largest multi-brand estate agency. We offer our clients the best brands, with the best people, in the best locations.

 

Close

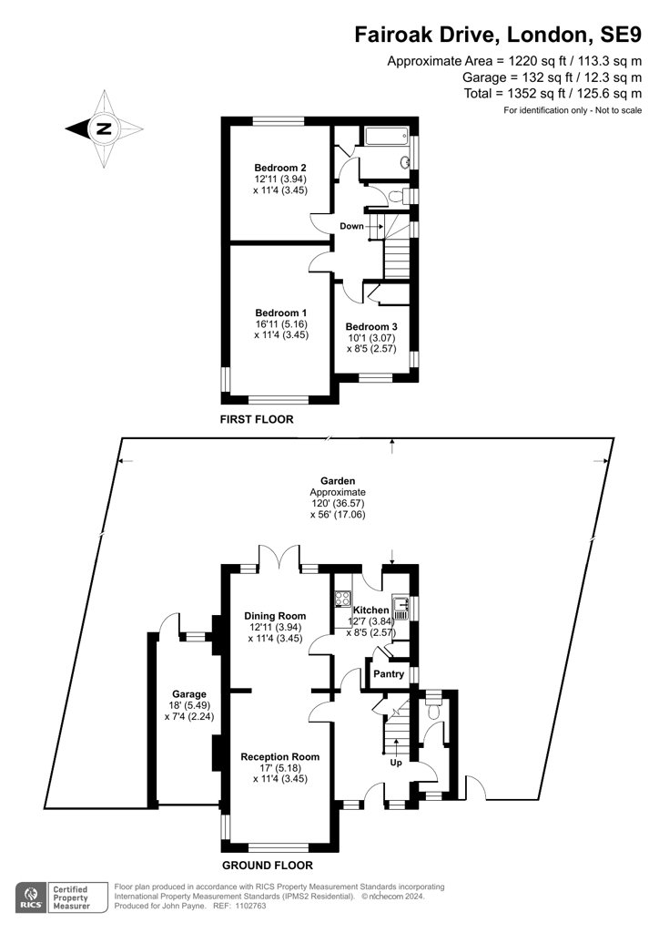
Asking price £875,000 leasehold

Detached House - Fairoak Drive, SE9

A truly exciting opportunity to purchase a real one-of-a-kind home, on one of Eltham’s most prestigious roads in Eltham Heights. A stunning three-bedroom detached home on Fairoak Drive, with bundles of potential to extend and modernise to your taste, subject to the necessary consents.

Current accommodation spreads across approximately 1220sqft of space and comprises; large and inviting entrance hall, a huge back to front through lounge with French doors out on the homes easterly facing garden, kitchen with pantry & W/C to the ground floor. To the first floor there are three well sized bedrooms, bathroom, and separate W/C.

The property boasts a huge garden reaching approximately 120ft long by 56ft wide. This home really had endless possibilities and whoever gets their hands on this, will be incredibly lucky!

Further benefits of this wonderful home are – off street parking, garage & side access.

Fairoak Drive, located in Eltham Heights is one of Eltham’s most sought after spots & there are many reasons why. Falconwood Station is 0.6 miles away and offers direct access to London Bridge, Waterloo East, Charing Cross & Cannon Street & London Victoria. Changes are also possible at Lewisham for the DLR as well as New Cross for the East London Line. The A2 & A20 are both also within reasonable distance providing access to and from London, and out towards the Kent countryside and coastal towns.

There are also several highly regarded primary and secondary schools within the area, as well as the grammar schools In Sidcup & Welling also not too far away.

This home really is a must see and we would be delighted to show you around.

Disclaimer – This property is current leasehold, however we have been advised by the vendor they are taking the necessary steps to purchase the freehold as part of the sale, so that the buyer will have the benefit of this on completion.

Lease length TBC | Ground Rent TBC | Service Charge TBC

Talk to Oliver Henness from John Payne (Estate agents in Eltham)

 

Use our calculator to work out potential mortgage repayments and stamp duty costs. Please note, these calculators are for general interest only and must not be relied on. Speak to our Mortgage Scout team for further information and advice. 

Powered by

Total Mortgage

£

Estimated Monthly Mortgage Payment

£

  • Powered by

Eltham Area Guide

Explore the areas we serve – from parks, entertainment and transport links, to shopping, eating and drinking.

Dive into property knowledge

Visit the AcornIntel knowledge-base, our library of articles to help you make sense of all things property, or send your questions to our panel of property experts.

Get your property valued

Looking to sell or let your property? Get a free property valuation from one of our experts.

Top