The Acorn Group is London’s largest multi-brand estate agency. We offer our clients the best brands, with the best people, in the best locations.

 

Close

Guide price £350,000 leasehold

Apartment - Stanswood Gardens, London, SE5

*Guide Price £350,000 - £375,000*

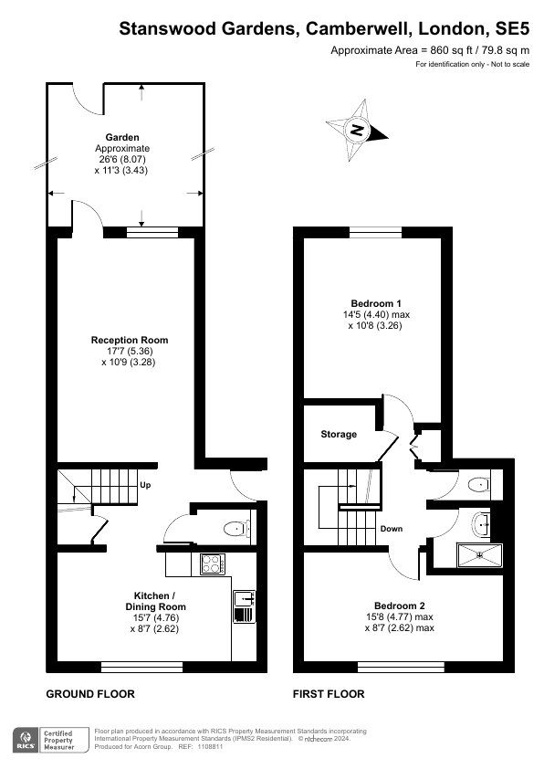
Placed on the ground floor of a well-maintained standalone block, Acorn Camberwell is pleased to welcome this larger than average, two-bedroom apartment to the sales market. Ideal as a residential or investment purchase, the property offers plenty of natural light, space and is available chain free.

Boasting a split-level layout, the property comprises a large reception room with direct access to the private garden, a spacious kitchen with big windows and room to dine, two genuine double bedrooms, a neutral bathroom and separate WC along with ample internal storage throughout.

The newly regenerated Burgess Park is very close-by as are the highly popular high streets of Peckham Rye and Camberwell. For transport, there is a bus stop right outside taking you to Elephant & Castle (no. 136) Aldgate, Borough and London Bridge (no. 343). Shops and a gym are within walking distance.

Leasehold - 94 years
Ground Rent - £10pa
Service Charge - TBC
Energy Efficiency Rating -C
Council Tax Band- C

Talk to James Moss from Acorn (Estate agents in Camberwell)

 

Use our calculator to work out potential mortgage repayments and stamp duty costs. Please note, these calculators are for general interest only and must not be relied on. Speak to our Mortgage Scout team for further information and advice. 

Powered by

Total Mortgage

£

Estimated Monthly Mortgage Payment

£

  • Powered by

Camberwell Area Guide

Explore the areas we serve – from parks, entertainment and transport links, to shopping, eating and drinking.

Dive into property knowledge

Visit the AcornIntel knowledge-base, our library of articles to help you make sense of all things property, or send your questions to our panel of property experts.

Get your property valued

Looking to sell or let your property? Get a free property valuation from one of our experts.

Top