The Acorn Group is London’s largest multi-brand estate agency. We offer our clients the best brands, with the best people, in the best locations.

 

Close

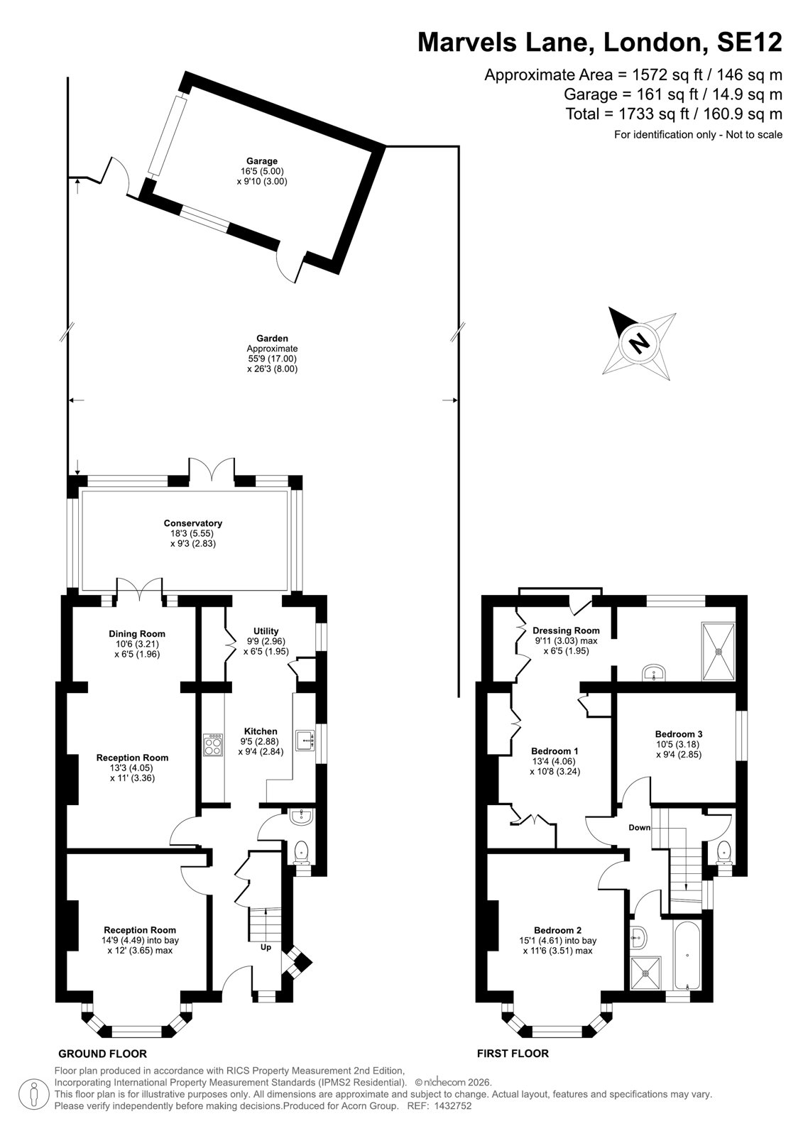
Asking price £575,000 freehold

Semi-detached House for sale - Marvels Lane, SE12

Acorn are thrilled to welcome to the market this well presented and spacious home, located well for transport links and amenities.

Within a short walk of Grove Park Station, the house is offered to the market with no onward chain and sits on a generous plot.

The ground floor accommodation offers WC, bright front lounge with bay window, spacious kitchen with ample fitted units and integrated appliances, large family/dining room, and a fantastic rear width conservatory enjoying views over the garden.

The first floor offers a master bedroom suite complete with dressing area and en suite shower room, two further double bedrooms, bathroom and separate WC.

Externally, the house boasts gated front drive, a 55+ft rear garden with lawn and decked area, and a garage with rear access.

Talk to Jake Blackman from Acorn (Estate agents in Grove Park)

 

Use our calculator to work out potential mortgage repayments and stamp duty costs. Please note, these calculators are for general interest only and must not be relied on. Speak to our Mortgage Scout team for further information and advice. 

Powered by

Total Mortgage

£

Estimated Monthly Mortgage Payment

£

  • Powered by

Grove Park Area Guide

Explore the areas we serve – from parks, entertainment and transport links, to shopping, eating and drinking.

Dive into property knowledge

Visit the AcornIntel knowledge-base, our library of articles to help you make sense of all things property, or send your questions to our panel of property experts.

Get your property valued

Looking to sell or let your property? Get a free property valuation from one of our experts.

Top