The Acorn Group is London’s largest multi-brand estate agency. We offer our clients the best brands, with the best people, in the best locations.

 

Close

Guide price £425,000 shareOfFreehold

Maisonette - Whiteley Road, SE19

**Guide Price £425,000- £450,000**
Unveiled to the SE19 market is this stunning two double bedroom, split level, maisonette located within walking distance to Gipsy Hill Station and the Crystal Palace Triangle!

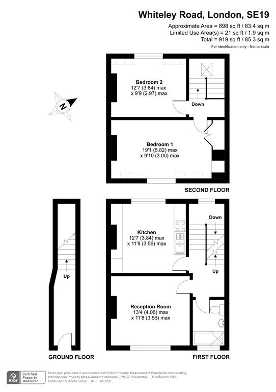
The accommodation is equally as impressive by offering a split level layout, arranged across two floors and boasting over 919sqft of internal floor space. The first floor comprises a spacious kitchen/diner, bathroom and a huge front reception room. The top floor has two good sized bedrooms, both neutrally decorated and benefiting from an abundance of natural light. Further benefits own private entrance and being sold CHAIN FREE.

Locations do not get much better than Whiteley Road; this quiet residential street is extremely picturesque and consists of a variety of early and late Victorian houses and conversion apartments in one of South East London’s most prestigious postcodes. Gipsy Hill station is no more than a short stroll away providing regular services to London Victoria & London Bridge as well as services to Sutton & Beckenham Junction. Looking closer to home, the famous Crystal Palace Triangle is approximately 0.5 miles away and hosts a wide range of boutique bars, restaurants and coffee shops.

Service Charge TBC
Ground Rent £0
Council Tax Band: C
Energy Efficiency Rating D

Talk to George Liney from Acorn (Estate agents in Crystal Palace)

 

Use our calculator to work out potential mortgage repayments and stamp duty costs. Please note, these calculators are for general interest only and must not be relied on. Speak to our Mortgage Scout team for further information and advice. 

Powered by

Total Mortgage

£

Estimated Monthly Mortgage Payment

£

  • Powered by

Crystal Palace Area Guide

Explore the areas we serve – from parks, entertainment and transport links, to shopping, eating and drinking.

Dive into property knowledge

Visit the AcornIntel knowledge-base, our library of articles to help you make sense of all things property, or send your questions to our panel of property experts.

Get your property valued

Looking to sell or let your property? Get a free property valuation from one of our experts.

Top