The Acorn Group is London’s largest multi-brand estate agency. We offer our clients the best brands, with the best people, in the best locations.

 

Close

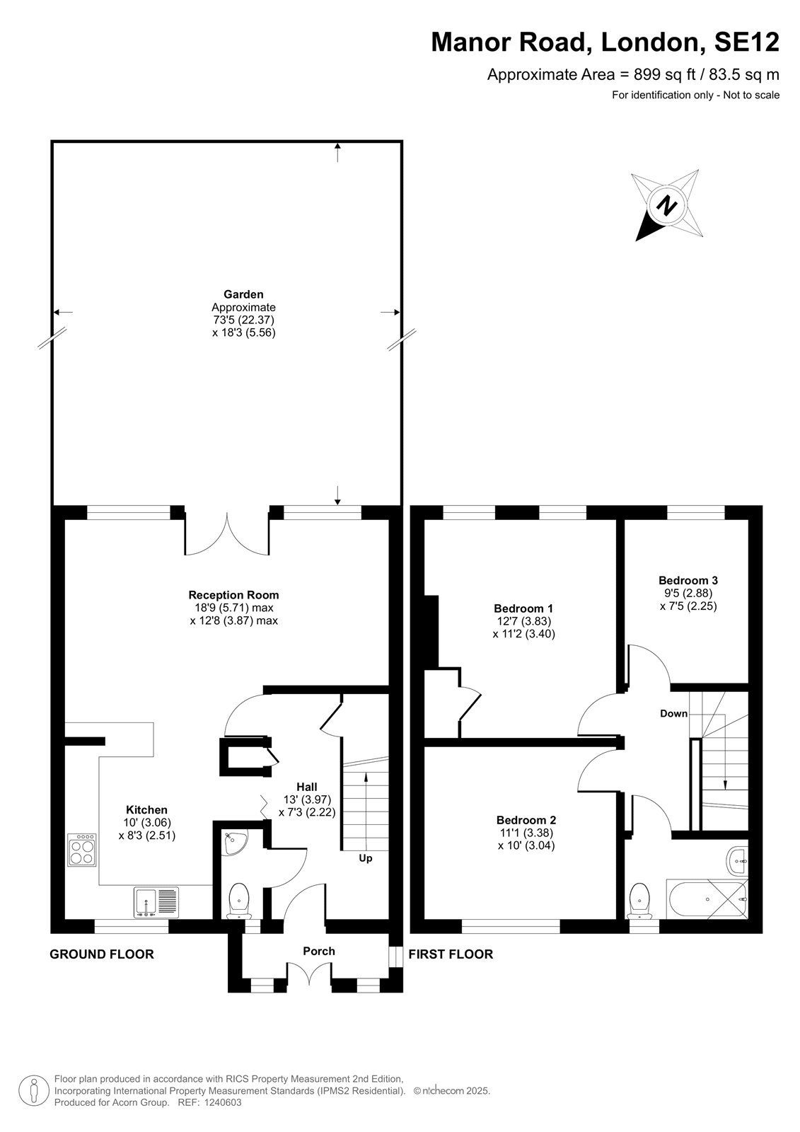
Guide price £475,000 freehold

Terraced House - Wydeville Manor Road, SE12

Guide Price £475,000-£500,000

Acorn are thrilled to welcome to the market this spacious family home, boasting an enviable location for transport links.

Offered to the market with no onward chain, the house offers ample off street parking by way of large front drive, and to the rear a huge South Easterly facing garden with patio and lawn space.

Internally, the accommodation on the ground floor comprises entrance porch, WC, fitted kitchen with ample units, opening up into the spacious lounge dining area with double doors out to the rear garden. The first floor comprises three well proportioned bedrooms and family bathroom.

The property is located for quick access into the City with Grove Park Rail Station within a short walk, as well as a number of local amenities and reputable schools.

Talk to Jake Blackman from Acorn (Estate agents in Grove Park)

 

Use our calculator to work out potential mortgage repayments and stamp duty costs. Please note, these calculators are for general interest only and must not be relied on. Speak to our Mortgage Scout team for further information and advice. 

Powered by

Total Mortgage

£

Estimated Monthly Mortgage Payment

£

  • Powered by

Grove Park Area Guide

Explore the areas we serve – from parks, entertainment and transport links, to shopping, eating and drinking.

Dive into property knowledge

Visit the AcornIntel knowledge-base, our library of articles to help you make sense of all things property, or send your questions to our panel of property experts.

Get your property valued

Looking to sell or let your property? Get a free property valuation from one of our experts.

Top