The Acorn Group is London’s largest multi-brand estate agency. We offer our clients the best brands, with the best people, in the best locations.

 

Close

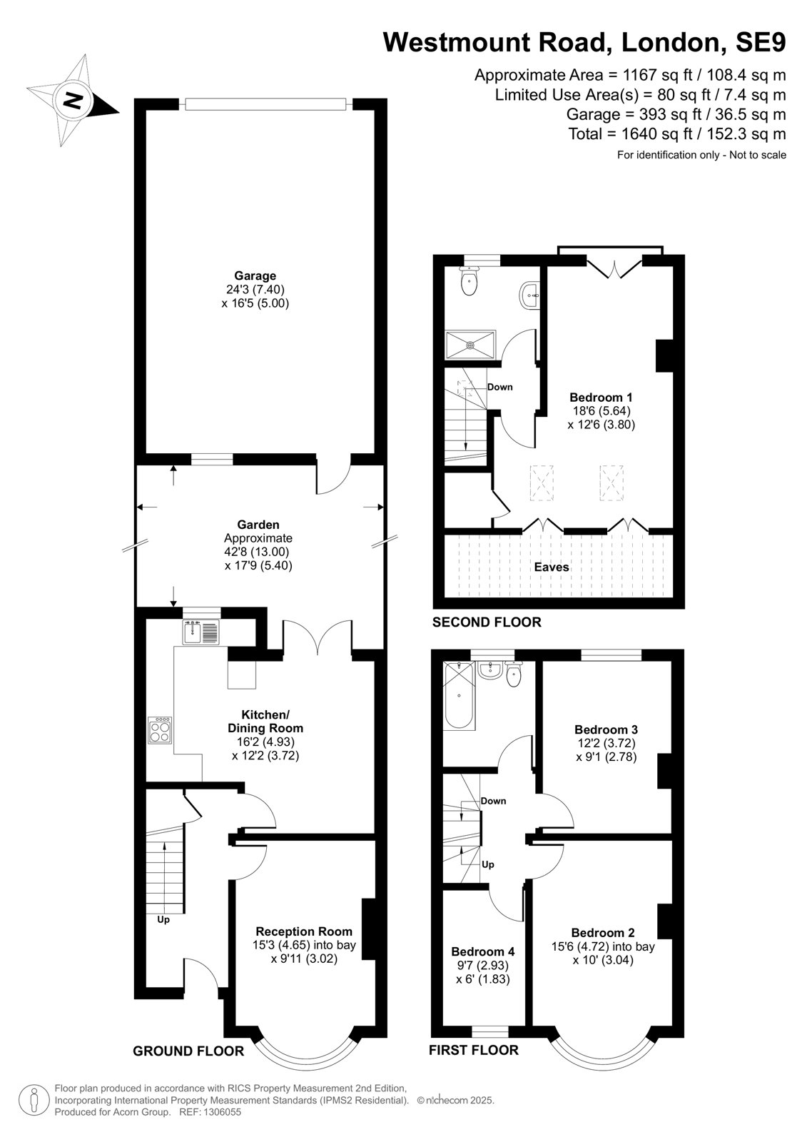
Asking price £575,000 freehold

Terraced House - Westmount Road, SE9

* Guide Price £575,000 to £595,000*

Charming 1930s Four-Bedroom Family Home with Loft Conversion, Juliet Balcony & Garage – Chain Free

This beautifully presented 1930s terraced house offers spacious, well-balanced accommodation across three floors and is offered chain free, making it an ideal choice for a smooth and stress-free purchase.

Inside, you’ll find a separate front living room filled with natural light from a classic bay window, providing the perfect space to relax. To the rear, a modern open-plan kitchen and dining area serves as the heart of the home, complete with sleek cabinetry and integrated appliances. French doors open directly onto a private rear garden, creating an effortless flow for indoor-outdoor living.

Upstairs on the first floor are three well-proportioned bedrooms, along with a stylish family bathroom finished to a high standard. The real showstopper, however, is the loft conversion, which has been thoughtfully extended to create a generous fourth bedroom. This impressive space features a Juliet balcony with sweeping skyline views over South East London, as well as an additional contemporary shower room, making it ideal as a luxurious principal suite or a private guest floor.

The property also benefits from front and rear gardens, offering outdoor space at both ends of the home. To the rear, a large double garage provides excellent storage or secure parking, and to the front, there is potential for off-street parking (subject to the usual permissions for a dropped kerb from the council).

The location is equally appealing. Westmount Road is home to a variety of independent retailers, including a charming French artisan bakery, the much-loved Westmount Café, and a handy DIY shop, all just a short stroll from your doorstep. Eltham High Street is also within walking distance, offering a wider selection of shops, restaurants, and amenities.

For commuters, Eltham Station is only 0.8 miles away, providing direct rail services to London Bridge, Charing Cross, Waterloo East, and Victoria, making daily travel into central London both fast and convenient.

Talk to Oliver Henness from John Payne (Estate agents in Eltham)

 

Use our calculator to work out potential mortgage repayments and stamp duty costs. Please note, these calculators are for general interest only and must not be relied on. Speak to our Mortgage Scout team for further information and advice. 

Powered by

Total Mortgage

£

Estimated Monthly Mortgage Payment

£

  • Powered by

Eltham Area Guide

Explore the areas we serve – from parks, entertainment and transport links, to shopping, eating and drinking.

Dive into property knowledge

Visit the AcornIntel knowledge-base, our library of articles to help you make sense of all things property, or send your questions to our panel of property experts.

Get your property valued

Looking to sell or let your property? Get a free property valuation from one of our experts.

Top