The Acorn Group is London’s largest multi-brand estate agency. We offer our clients the best brands, with the best people, in the best locations.

 

Close

Guide price £575,000 freehold

Terraced House for sale - Westmount Road, SE9

** Guide Price £575 000 to £595 000 **

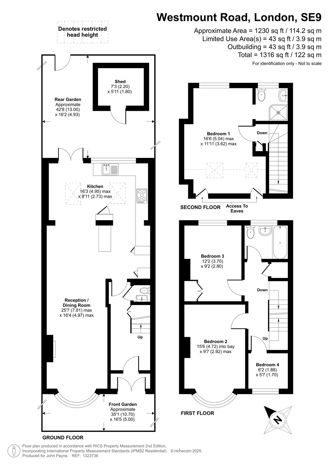
Located on a sought-after street in Eltham, this beautifully extended four-bedroom terraced home offers an exceptional blend of space, comfort, and practicality - perfectly suited for modern family living.

Thoughtfully extended to both the ground floor and loft, the property boasts an impressive open-plan layout ideal for both everyday life and entertaining. The spacious living and dining area flows seamlessly into a stunning, extended kitchen featuring a stylish breakfast bar, skylights that flood the space with natural light, and ample room for appliances.

Step outside to a generously sized, tiered east-facing garden, a wonderful setting for al fresco dining, summer gatherings, or quiet relaxation. The lawned area offers an ideal space for green-fingered buyers, while rear access adds convenience.

Upstairs, the home comprises four well-proportioned bedrooms arranged over two floors, including a luxurious top-floor bedroom with en-suite. A modern family bathroom serves the first floor, while a convenient ground floor W/C completes the layout.

Additional features include off-street parking, double glazing throughout, and efficient central heating.

With its generous proportions, high-quality finishes, and excellent location, this home is perfect for growing families looking to settle in a vibrant and well-connected area
Westmount Road is home to a variety of independent retailers, including a charming French artisan bakery, the much-loved Westmount Café, and a handy DIY shop, all just a short stroll from your doorstep. Eltham High Street is also within walking distance, offering a wider selection of shops, restaurants, and amenities.

For commuters, Eltham Station is only 0.9 miles away, providing direct rail services to London Bridge, Charing Cross, Waterloo East, and Victoria, making daily travel into central London both fast and convenient.

The Royal Borough of Greenwich - Council Tax Band - D
Energy Efficiency Rating - D

Talk to Oliver Henness from John Payne (Estate agents in Eltham)

 

Use our calculator to work out potential mortgage repayments and stamp duty costs. Please note, these calculators are for general interest only and must not be relied on. Speak to our Mortgage Scout team for further information and advice. 

Powered by

Total Mortgage

£

Estimated Monthly Mortgage Payment

£

  • Powered by

Eltham Area Guide

Explore the areas we serve – from parks, entertainment and transport links, to shopping, eating and drinking.

Dive into property knowledge

Visit the AcornIntel knowledge-base, our library of articles to help you make sense of all things property, or send your questions to our panel of property experts.

Get your property valued

Looking to sell or let your property? Get a free property valuation from one of our experts.

Top