The Acorn Group is London’s largest multi-brand estate agency. We offer our clients the best brands, with the best people, in the best locations.

 

Close

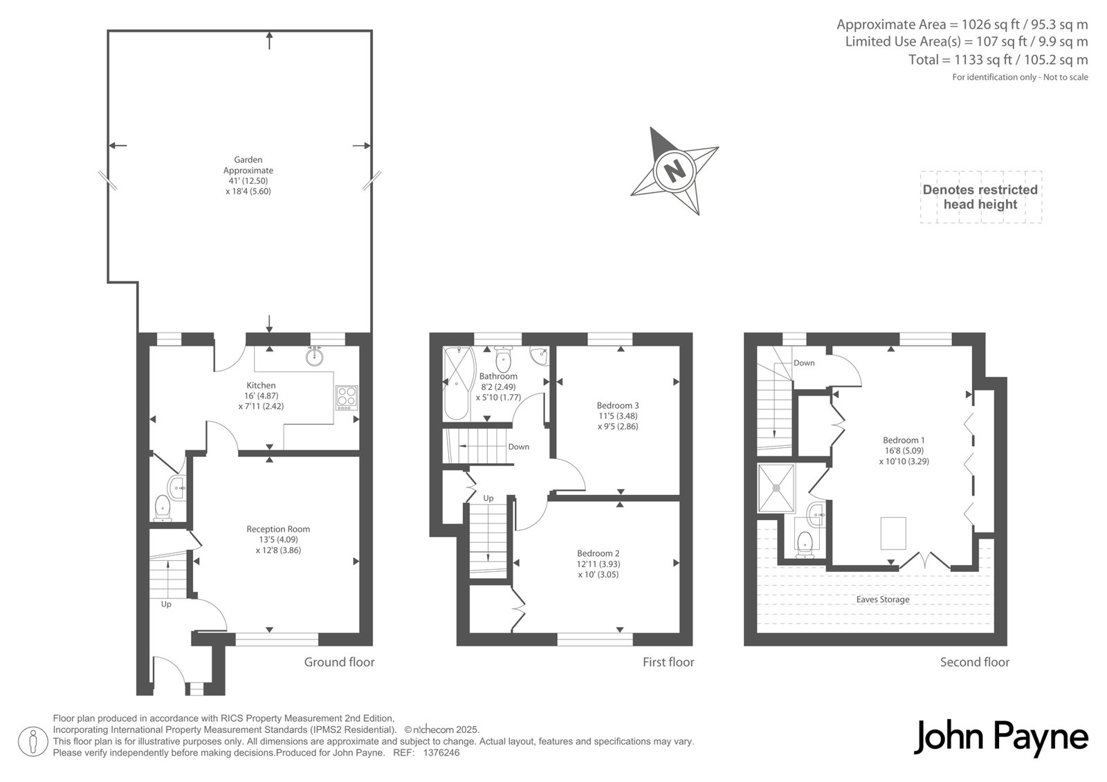
Asking price £450,000 freehold

Terraced House for sale - Voce Road, SE18

A well presented and extended three bedroom family home located in this quiet residential area. Benefitting from off street parking, loft conversion with en-suite and three double bedrooms. Convenient for Shrewsbury Park, local bus routes, schools and amenities.

On entering the property you are welcomed to a spacious 13ft front reception room with under stairs storage, electric fire, double glazed window to the front and wood laminate flooring. To the rear of the property you will find the 16ft kitchen/breakfast room fitted with a range of modern wall and base units with complimentary work surfaces. Integrated oven, gas hob and filter hood. Space for further appliances, door to rear garden and ground floor cloak room/WC with wash hand basin and low level WC.

On the first floor you will find bedroom two, 12ft x 10ft, with fitted wardrobes, carpet as fitted and double glazed window to the front. Bedroom three, 11ft x 9ft, with carpet as fitted and double glazed window overlooking the rear garden. The family bathroom is fitted with a three piece suite comprising a corner sink unit with storage under, low level WC, 'P' shaped panelled bath with shower over and glass shower screen. The landing provides access to the loft conversion.

On the second floor you will find the master suite, 16ft x 10ft, with bespoke built in wardrobes, eaves storage, carpet as fitted, double glazed window overlooking the garden and Velux window to the front. The loft conversion also benefits from an en-suite shower room fitted with a walk in shower cubicle with rainfall shower, vanity wash hand basin and cistern enclosed WC.

Externally there is a private rear garden with decked patio, laid to lawn with flower borders and shed to remain. Gate to side providing access to the front where you will find the driveway providing off street parking.

Internal viewings are highly recommended to appreciate the accommodation on offer in this stunning home.

Talk to William Chidley from John Payne (Estate agents in Plumstead Common)

 

Use our calculator to work out potential mortgage repayments and stamp duty costs. Please note, these calculators are for general interest only and must not be relied on. Speak to our Mortgage Scout team for further information and advice. 

Powered by

Total Mortgage

£

Estimated Monthly Mortgage Payment

£

  • Powered by

Area Guide

Explore the areas we serve – from parks, entertainment and transport links, to shopping, eating and drinking.

Dive into property knowledge

Visit the AcornIntel knowledge-base, our library of articles to help you make sense of all things property, or send your questions to our panel of property experts.

Get your property valued

Looking to sell or let your property? Get a free property valuation from one of our experts.

Top