The Acorn Group is London’s largest multi-brand estate agency. We offer our clients the best brands, with the best people, in the best locations.

 

Close

Asking price £425,000 freehold

Terraced House - Tyrrell Avenue, DA16

Acorn are delighted to welcome to the market this well presented two-bedroom terrace home, located well for transport links and amenities.

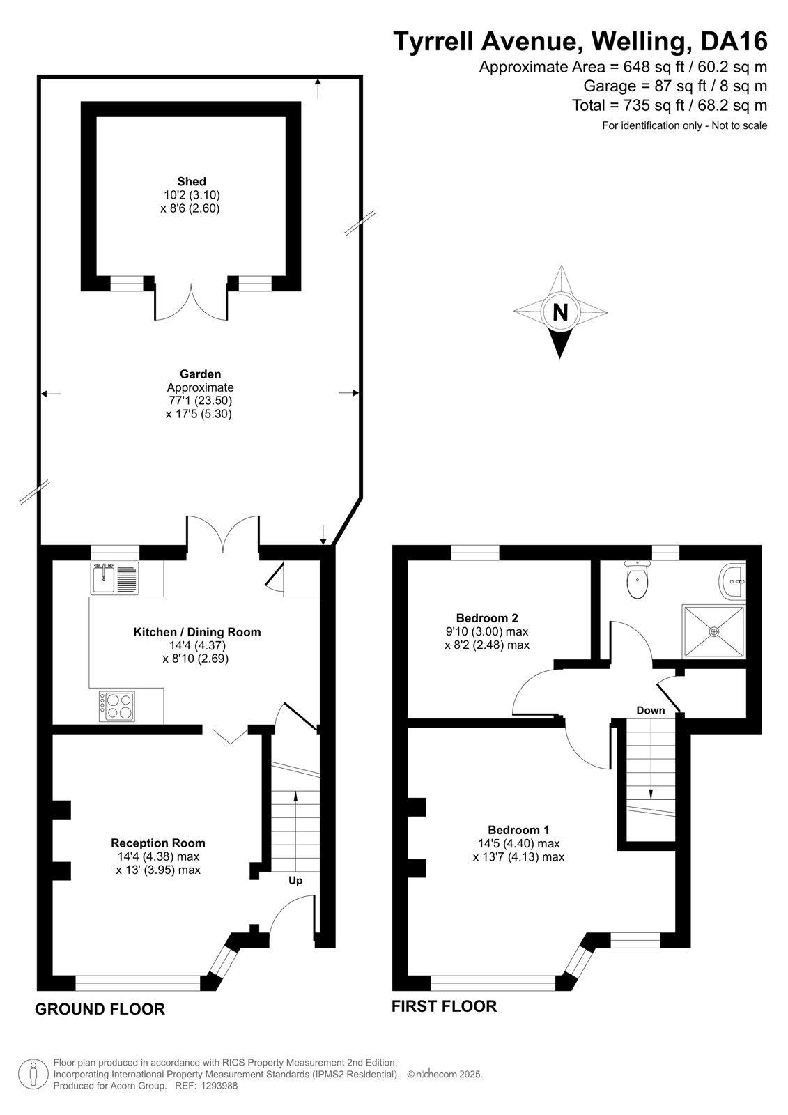
The ground floor accommodation comprises front reception room and kitchen/diner. The first-floor houses two bright bedrooms with the main bedroom offering a large dressing table area or office, and family bathroom suite.

Externally the house offers front parking by the way of a block driveway with side access and a 77ft South facing rear garden with large patio area and mainly laid to lawn with a shed at the rear .

A popular road, Tyrrell Avenue is well located for transport links with Welling Station just over a mile away, as well as offering easy access to Danson Park. There are several good schools within the near area, as well as a number of local amenities.

Tenure - Freehold
London Borough of Bexley - Council Tax Band - C
Energy Efficiency Rating – D

Talk to Matthew King from Acorn (Estate agents in Welling)

 

Use our calculator to work out potential mortgage repayments and stamp duty costs. Please note, these calculators are for general interest only and must not be relied on. Speak to our Mortgage Scout team for further information and advice. 

Powered by

Total Mortgage

£

Estimated Monthly Mortgage Payment

£

  • Powered by

Welling Area Guide

Explore the areas we serve – from parks, entertainment and transport links, to shopping, eating and drinking.

Dive into property knowledge

Visit the AcornIntel knowledge-base, our library of articles to help you make sense of all things property, or send your questions to our panel of property experts.

Get your property valued

Looking to sell or let your property? Get a free property valuation from one of our experts.

Top