The Acorn Group is London’s largest multi-brand estate agency. We offer our clients the best brands, with the best people, in the best locations.

 

Close

Guide price £315,000 leasehold

Terraced House for sale - Trafalgar Road, Kent, DA11

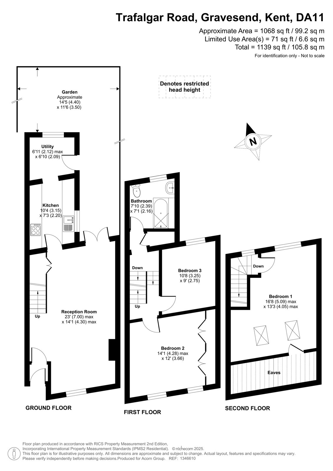
Nestled on a quiet residential street in the heart of Gravesend, Salem Villas offers a superb opportunity to acquire a beautifully presented three-bedroom terraced home that blends modern living with classic charm. Set over three floors, this stylish property is ideal for families, first-time buyers, or anyone looking to move straight into a well-maintained and thoughtfully updated home.

The ground floor welcomes you with a spacious and light-filled living area, featuring a contemporary finish that’s both inviting and practical. To the rear, the modern kitchen and dining space provides the perfect hub for everyday living and entertaining, complete with sleek units, ample worktop space, and direct access to the private rear garden—ideal for summer evenings and outdoor gatherings.

Upstairs, the property offers two well-proportioned bedrooms, while the top floor boasts a fantastic loft conversion, currently used as the third bedroom. This versatile space is flooded with natural light and offers excellent flexibility, whether used as a main bedroom, home office, or guest room.

Located within easy reach of Gravesend town centre, the property benefits from excellent transport links including fast train services into London from Gravesend Station, as well as nearby schools, shops, and local amenities.

Offered with a guide price of £315,000 - £340,000, this fantastic home is not to be missed. Early viewing is highly recommended to appreciate the space, finish, and location on offer.

Leasehold
Lease Length: 999 Years from 4th June 1849
Service Charge: 0
Ground Rent: Peppercorn
Gravesham Borough Council - Tax Band: B
Energy Efficiency Rating - D

Talk to Daniel Langiano from Acorn (Estate agents in Gravesend)

 

Use our calculator to work out potential mortgage repayments and stamp duty costs. Please note, these calculators are for general interest only and must not be relied on. Speak to our Mortgage Scout team for further information and advice. 

Powered by

Total Mortgage

£

Estimated Monthly Mortgage Payment

£

  • Powered by

Gravesend Area Guide

Explore the areas we serve – from parks, entertainment and transport links, to shopping, eating and drinking.

Dive into property knowledge

Visit the AcornIntel knowledge-base, our library of articles to help you make sense of all things property, or send your questions to our panel of property experts.

Get your property valued

Looking to sell or let your property? Get a free property valuation from one of our experts.

Top