The Acorn Group is London’s largest multi-brand estate agency. We offer our clients the best brands, with the best people, in the best locations.

 

Close

OIEO £400,000 freehold

Terraced House - The Green, DA16

Acorn are delighted to welcome to the market. this three bedroom terrace family home, situated on a popular road in South Welling.

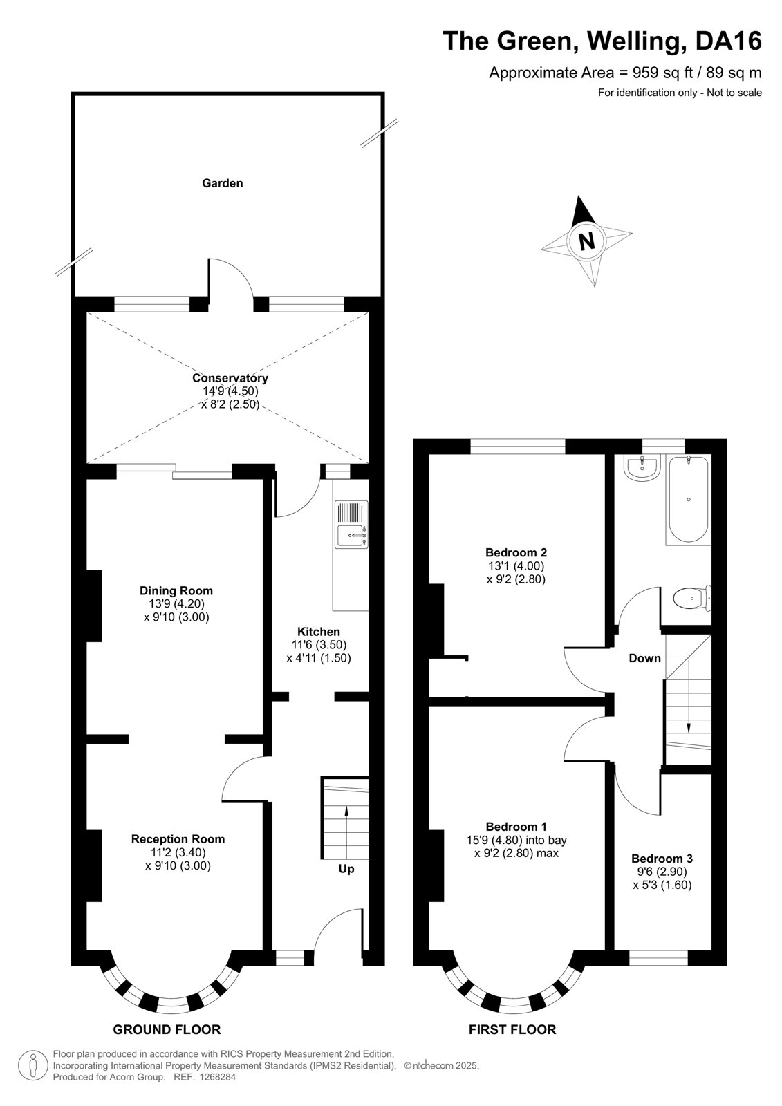
Offered to the market chain free but requiring updating, the ground floor accommodation comprises; large through lounge, kitchen and lean-to leading onto the garden. The first floor comprises; three well proportioned bedrooms and family bathroom.

Externally, the house offers potential for off street parking to the front (subject to the necessary consents from the Council), and a rear garden which is mainly lawn with rear access.

Welling has fast become very desirable and offers everything you would expect from a local high street, including a wide range of supermarkets, shops, restaurants and pubs. Transport links are plentiful with bus routes to surrounding areas including Bexleyheath, Blackheath, North Greenwich (The O2) Bluewater and Abbey Wood with the Elizabeth Line. Falconwood Station is 0.6 miles away and offers direct links to London Bridge, Charing Cross, Cannon Street, Waterloo East & Victoria. Changes are possible at Lewisham for the DLR and New Cross for the East London Line. Crook Log Leisure Centre & The Broadway Shopping Centre are also within reasonable distance.

Tenure - Freehold | Council Tax Band - D

Talk to Matthew King from Acorn (Estate agents in Welling)

 

Use our calculator to work out potential mortgage repayments and stamp duty costs. Please note, these calculators are for general interest only and must not be relied on. Speak to our Mortgage Scout team for further information and advice. 

Powered by

Total Mortgage

£

Estimated Monthly Mortgage Payment

£

  • Powered by

Welling Area Guide

Explore the areas we serve – from parks, entertainment and transport links, to shopping, eating and drinking.

Dive into property knowledge

Visit the AcornIntel knowledge-base, our library of articles to help you make sense of all things property, or send your questions to our panel of property experts.

Get your property valued

Looking to sell or let your property? Get a free property valuation from one of our experts.

Top