The Acorn Group is London’s largest multi-brand estate agency. We offer our clients the best brands, with the best people, in the best locations.

 

Close

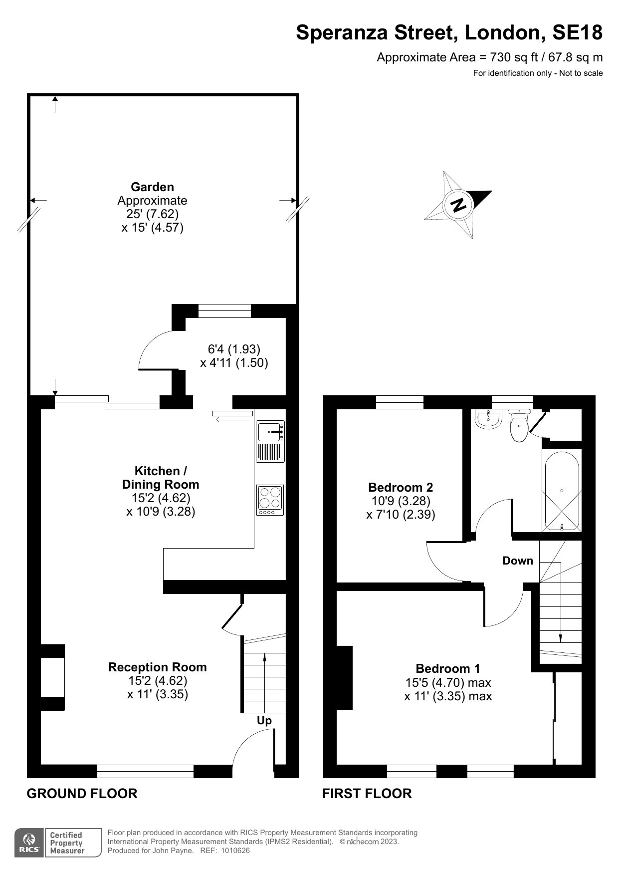
Guide price £375,000 freehold

Terraced House - Speranza Street, SE18

*GUIDE PRICE £375,000-£400,000* Offered to the market chain free is this two bedroom period built family home located just off of Plumstead High Street. Convenient for local shops, schools, bus routes and Plumstead mainline station. EPC Rating D.

Ground floor accommodation comprises a spacious Living room open to the fitted kitchen/dining room with modern wall and base units with complimentary work surfaces. Integrated oven, hob and filter hood, space for appliances. Sliding patio doors to rear garden. Utility room to rear plumbed for washing machine and door to rear garden.

To the first floor you will find two bedrooms, the master bedroom 15ft x 11ft, the master with built in wardrobes, stripped and varnished floorboards. The bathroom is fitted with a white three piece suite comprising a panelled bath, with shower attachment, pedestal wash hand basing and low level WC.

Externally there is a rear garden with paved patio area, artificial lawn and shed to remain.

Energy Efficiency Rating D.

Council Tax – Local Authority Royal Borough of Greenwich, Band C.

Talk to William Chidley from John Payne (Estate agents in Plumstead Common)

 

Use our calculator to work out potential mortgage repayments and stamp duty costs. Please note, these calculators are for general interest only and must not be relied on. Speak to our Mortgage Scout team for further information and advice. 

Powered by

Total Mortgage

£

Estimated Monthly Mortgage Payment

£

  • Powered by

Area Guide

Explore the areas we serve – from parks, entertainment and transport links, to shopping, eating and drinking.

Dive into property knowledge

Visit the AcornIntel knowledge-base, our library of articles to help you make sense of all things property, or send your questions to our panel of property experts.

Get your property valued

Looking to sell or let your property? Get a free property valuation from one of our experts.

Top