The Acorn Group is London’s largest multi-brand estate agency. We offer our clients the best brands, with the best people, in the best locations.

 

Close

Guide price £875,000 freehold

Terraced House for sale - Southampton Way, SE5

Guide Price: £875,000 - £900,000

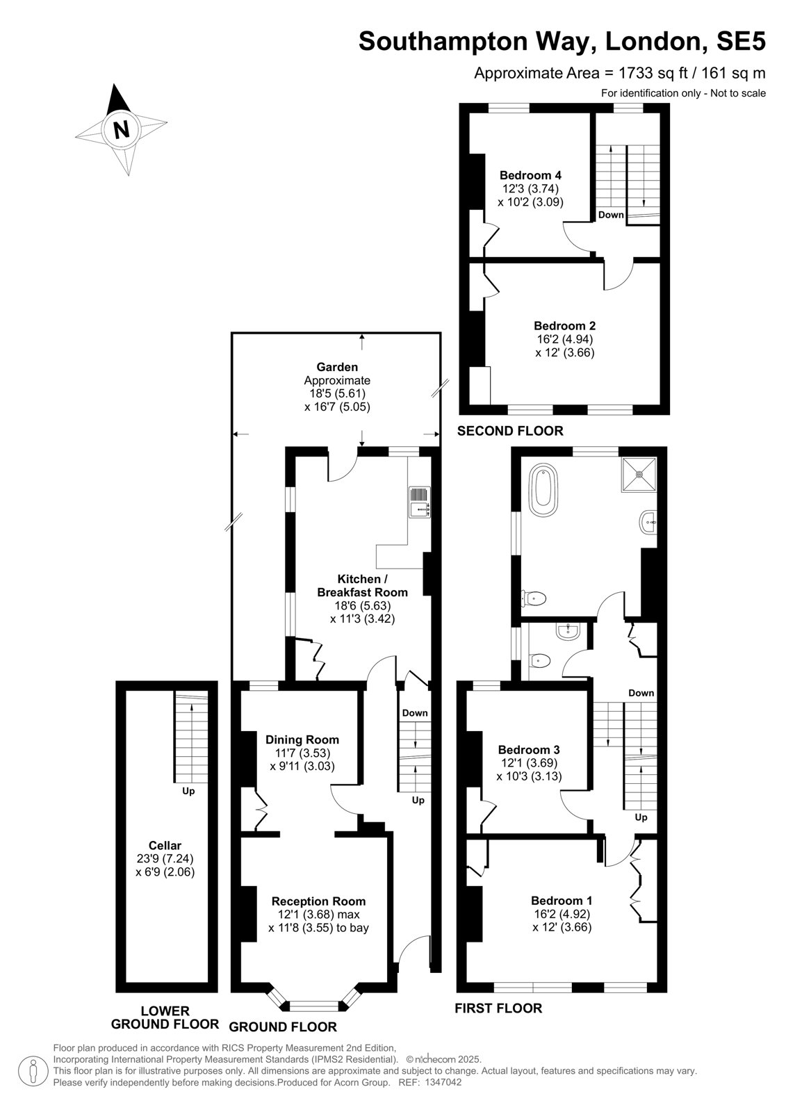
Acorn are proud to present this four bedroom victorian residence on Southampton Way.

Measuring at over 1700 sq ft, across three floors, this property is perfect for modern day living. The ground floor consists of a large reception room which flows through to the dining room or second reception depending on requirements. On the first floor, the property boasts a two double bedrooms and a bathroom all with original features such as high ceilings, fire places and markings. The second floor consists of two more bedrooms ideal for guests staying over.

Southampton Way is a well known street and located on the Camberwell/Peckham Borders just minutes away from the popular Burgess Park which provides a fantastic cycle route to the City. Other excellent transport options are Peckham Rye Overground station and Denmark Hill along with various bus routes closeby and an array of shops, bars and restaurants are also closeby.

Talk to James Moss from Acorn (Estate agents in Camberwell)

 

Use our calculator to work out potential mortgage repayments and stamp duty costs. Please note, these calculators are for general interest only and must not be relied on. Speak to our Mortgage Scout team for further information and advice. 

Powered by

Total Mortgage

£

Estimated Monthly Mortgage Payment

£

  • Powered by

Camberwell Area Guide

Explore the areas we serve – from parks, entertainment and transport links, to shopping, eating and drinking.

Dive into property knowledge

Visit the AcornIntel knowledge-base, our library of articles to help you make sense of all things property, or send your questions to our panel of property experts.

Get your property valued

Looking to sell or let your property? Get a free property valuation from one of our experts.

Top