The Acorn Group is London’s largest multi-brand estate agency. We offer our clients the best brands, with the best people, in the best locations.

 

Close

OIEO £400,000 freehold

Terraced House - South Park Crescent, SE6

Acorn are delighted to welcome to the market this well presented and bright Freehold house, offered with no onward chain.

Located on a quiet residential road, the house has ample transport links and is within easy reach of a number of local amenities.

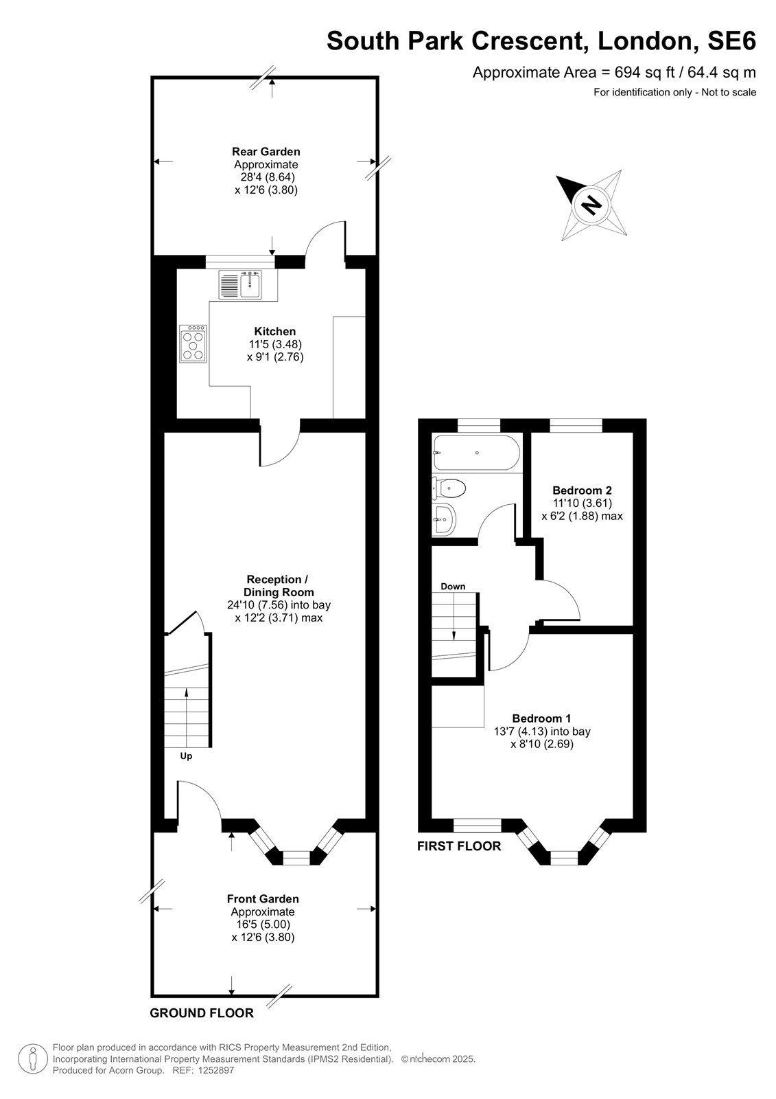
The ground floor accommodation comprises spacious through lounge diner, and a large fitted kitchen with modern appliances.

The first floor comprises well appointed bathroom and two well proportioned bedrooms

Externally the house offers both front and rear gardens, and represents a fantastic first time purchase.

Talk to Jake Blackman from Acorn (Estate agents in Catford)

 

Use our calculator to work out potential mortgage repayments and stamp duty costs. Please note, these calculators are for general interest only and must not be relied on. Speak to our Mortgage Scout team for further information and advice. 

Powered by

Total Mortgage

£

Estimated Monthly Mortgage Payment

£

  • Powered by

Catford Area Guide

Explore the areas we serve – from parks, entertainment and transport links, to shopping, eating and drinking.

Dive into property knowledge

Visit the AcornIntel knowledge-base, our library of articles to help you make sense of all things property, or send your questions to our panel of property experts.

Get your property valued

Looking to sell or let your property? Get a free property valuation from one of our experts.

Top