The Acorn Group is London’s largest multi-brand estate agency. We offer our clients the best brands, with the best people, in the best locations.

 

Close

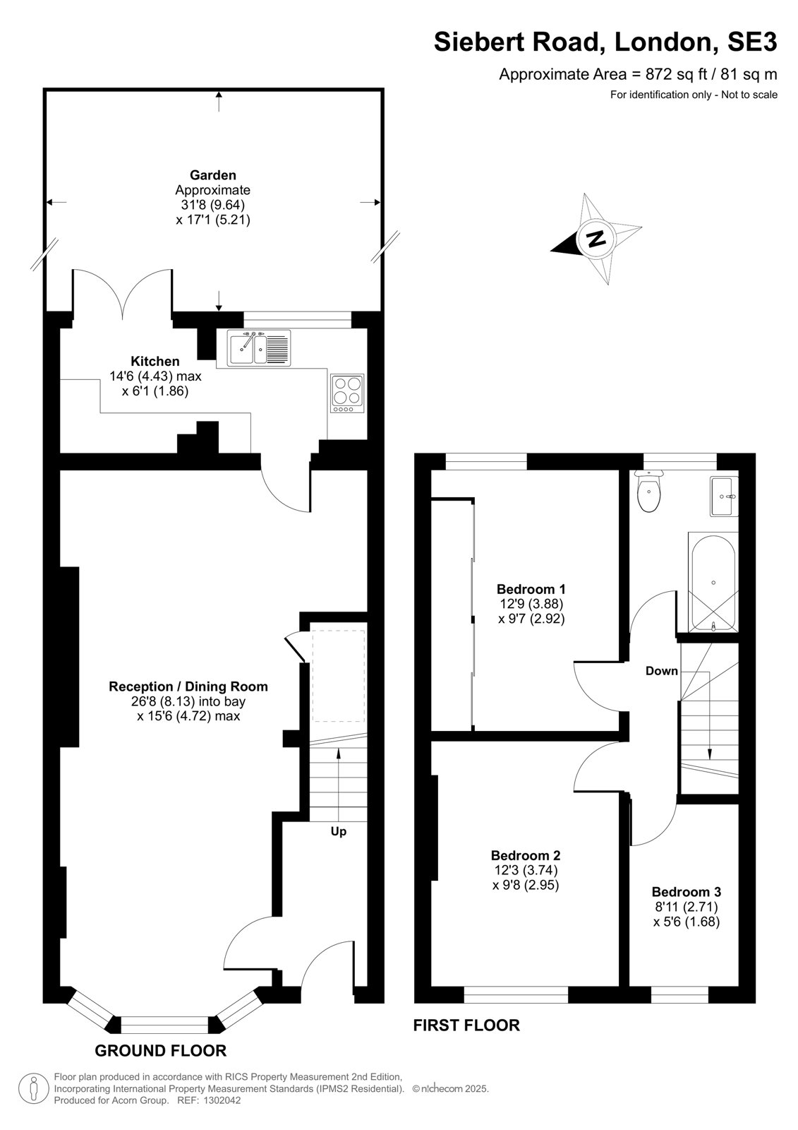
Guide price £550,000 freehold

Terraced House for sale - Siebert Road, SE3

*** GUIDE PRICE - £550,000 - £575,000 ***

Delightful, three-bedroom family home located close to the Royal Standard and highly regarded schools.

Internally the property measures close to 900 square feet and comprises; a spacious through lounge, a galley style kitchen which open on to a 30-foot East facing garden. On the first floor you will find two sizeable bedrooms and a further single bedroom. There is also a three-piece bathroom suite and access to a loft space.

Located only a short walk to the Royal Standard which offers plenty of amenities including cafes, independent shops, and an M & S simply food. There are many highly regarded schools close by which include Invicta, Sherington Primary schools and Leigh Academy secondary school.

The Royal Borough of Greenwich - Council Tax Band - C
Energy Efficiency Rating - C

Talk to Will McElligott from John Payne (Estate agents in Blackheath Standard)

 

Use our calculator to work out potential mortgage repayments and stamp duty costs. Please note, these calculators are for general interest only and must not be relied on. Speak to our Mortgage Scout team for further information and advice. 

Powered by

Total Mortgage

£

Estimated Monthly Mortgage Payment

£

  • Powered by

Blackheath Standard Area Guide

Explore the areas we serve – from parks, entertainment and transport links, to shopping, eating and drinking.

Dive into property knowledge

Visit the AcornIntel knowledge-base, our library of articles to help you make sense of all things property, or send your questions to our panel of property experts.

Get your property valued

Looking to sell or let your property? Get a free property valuation from one of our experts.

Top