The Acorn Group is London’s largest multi-brand estate agency. We offer our clients the best brands, with the best people, in the best locations.

 

Close

OIEO £340,000 freehold

Terraced House for sale - Ship Lane, Kent, BR8

Langford Russell present this deceptively spacious two double bedroom cottage to the sales market. The property is in the ever-popular Swanley Village, a semi-rural village within easy access to all local amenities and major road/transport links.

Nearby is the Swanley Mainline train station, offering a direct commute into central London within approximately twenty minutes and is within the Oyster Zone. In addition to easy access to M20/M25/A2 road links, Bluewater Shopping Centre & Ebbsfleet International.

Nearby you will find the Swanley Boat Park which proves popular for local families with events throughout the year, the recently re-furbished White Oak Leisure Centre and more.

The Swanley Village offers a fantastic community, the St Pauls Church of England Primary school, local pubs, and blissful fields for those lovely family/dog walks.

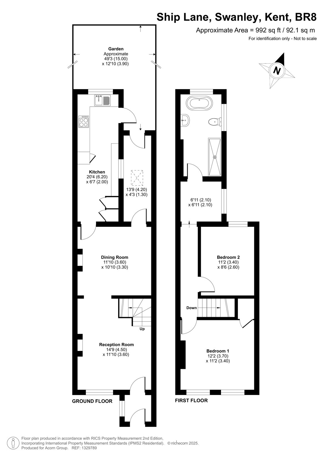
Property comprises – Entrance porch, 14’9x11’10 reception one leading into reception two, utility area with rear access to rear garden and 20’4x6’7 kitchen with side access to rear garden.

To the first floor – Landing, two double bedrooms, 6’11x6’11 dressing area, leading into a luxurious family bathroom with open roll top bath and double separate shower cubicle.

Externally, a beautifully landscaped rear garden, a low maintenance rear garden with rear pedestrian access.

Further to note this property offers double glazing, and Calor gas central heating. Contact us to arrange your opportunity to view this rarely available pristine cottage.

Tenure - Freehold
Sevenaoks District Council - Tax Band - D
Energy Efficiency Rating - C

Talk to Hayley Buist from Langford Russell (Estate agents in Swanley)

 

Use our calculator to work out potential mortgage repayments and stamp duty costs. Please note, these calculators are for general interest only and must not be relied on. Speak to our Mortgage Scout team for further information and advice. 

Powered by

Total Mortgage

£

Estimated Monthly Mortgage Payment

£

  • Powered by

Swanley Area Guide

Explore the areas we serve – from parks, entertainment and transport links, to shopping, eating and drinking.

Dive into property knowledge

Visit the AcornIntel knowledge-base, our library of articles to help you make sense of all things property, or send your questions to our panel of property experts.

Get your property valued

Looking to sell or let your property? Get a free property valuation from one of our experts.

Top