The Acorn Group is London’s largest multi-brand estate agency. We offer our clients the best brands, with the best people, in the best locations.

 

Close

Asking price £450,000 freehold

Terraced House - Sandhurst Road, London, SE6

Acorn are delighted to welcome to the market this bright and airy Period freehold house, located well for Catford's transport links and amenities.

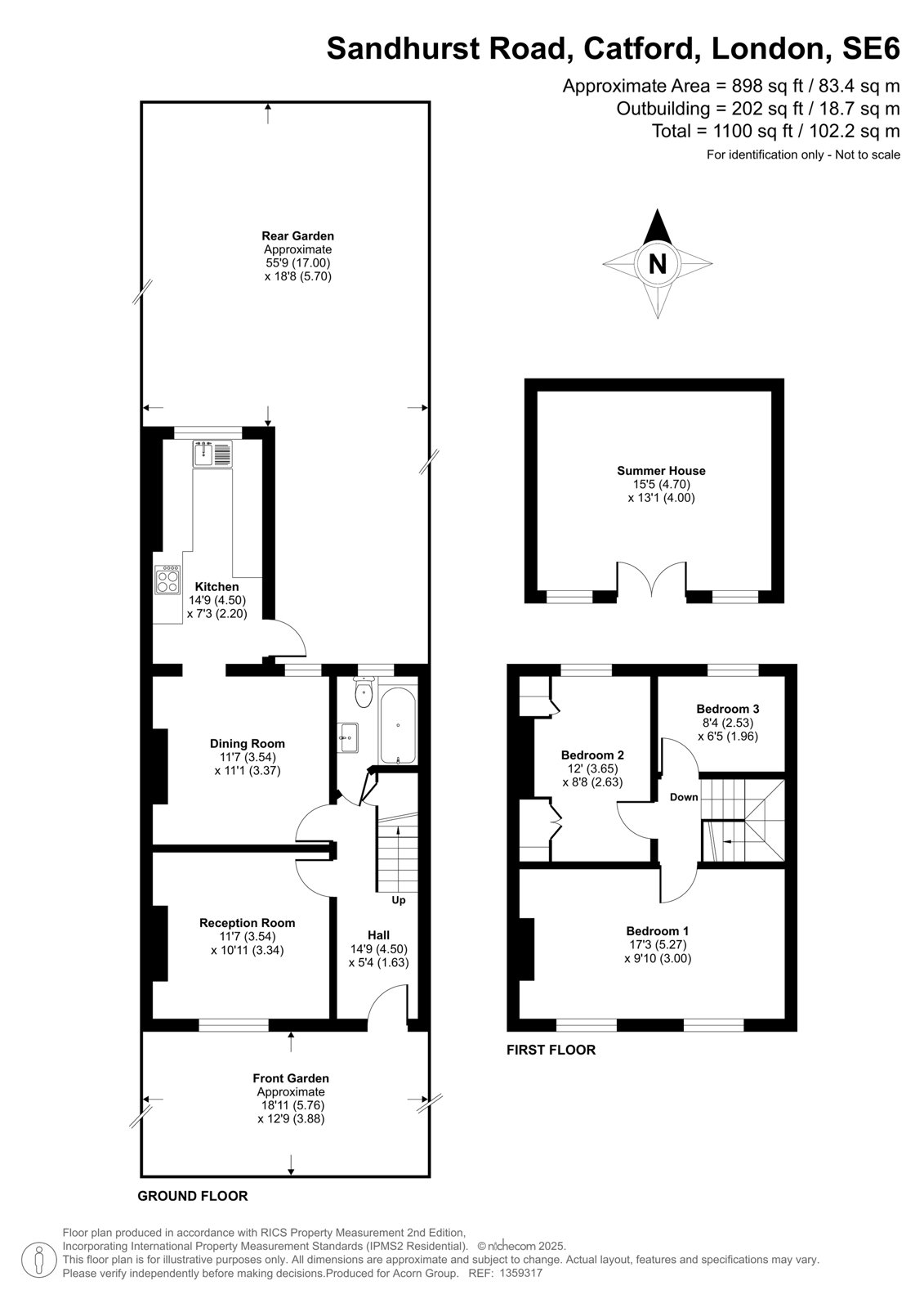
Offered to the market in good order, the house comprises on the ground floor of bright front lounge, well appointed bathroom, separate dining room, and a good size fitted kitchen with ample units. The first floor comprises three well proportioned bedrooms.

Externally, the house both front and rear gardens, with rear garden measuring approx. 60ft with lawn and patio area. There is also a garden room at the end of the garden with power.

Freehold | Council Tax Band: C | Energy Efficiency Rating: D

Talk to Jake Blackman from Acorn (Estate agents in Catford)

 

Use our calculator to work out potential mortgage repayments and stamp duty costs. Please note, these calculators are for general interest only and must not be relied on. Speak to our Mortgage Scout team for further information and advice. 

Powered by

Total Mortgage

£

Estimated Monthly Mortgage Payment

£

  • Powered by

Catford Area Guide

Explore the areas we serve – from parks, entertainment and transport links, to shopping, eating and drinking.

Dive into property knowledge

Visit the AcornIntel knowledge-base, our library of articles to help you make sense of all things property, or send your questions to our panel of property experts.

Get your property valued

Looking to sell or let your property? Get a free property valuation from one of our experts.

Top