The Acorn Group is London’s largest multi-brand estate agency. We offer our clients the best brands, with the best people, in the best locations.

 

Close

Asking price £825,000 freehold

Terraced House for sale - Rushey Mead, SE4

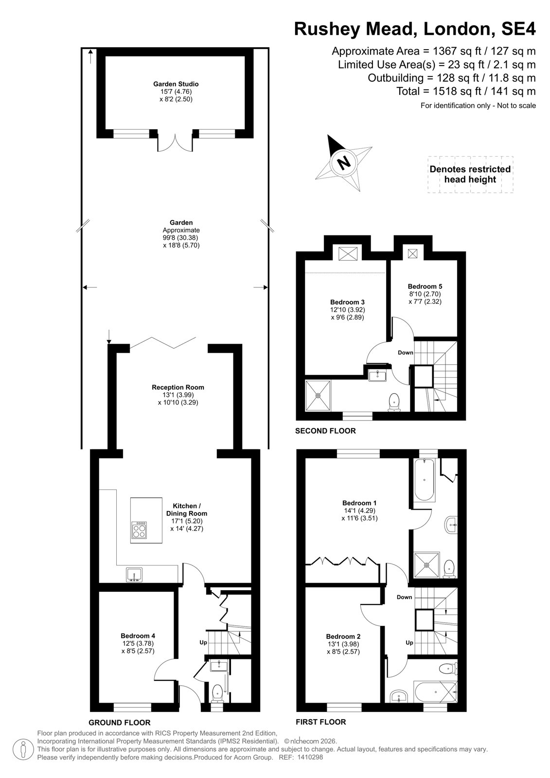
Acorn are delighted to present this substantial and beautifully upgraded five-bedroom mid-terrace home, arranged over three floors and extending to approximately 1,518 sqft including the external studio. The ground floor comprises a spacious 17'7 kitchen/dining room featuring stone worktops, a central island and generous storage, creating an ideal space for both everyday living and entertaining. This flows seamlessly into a bright 13'1 rear reception room with bi-fold doors leading to the impressive 100ft private garden.

The garden further benefits from a 15'4 x 8'2 garden studio with electrics, wifi, heating and air conditioning. A study room/cosy is also located on the ground floor, providing flexibility or additional reception space, alongside a convenient WC with a secret door to a large storage area.

The first floor offers two well-proportioned double bedrooms, including a generous 14'1 principal bedroom with newly installed ensuite complete with an extra-long double-ended bath and separate shower. A contemporary family bathroom serves this level. The top floor provides two further bedrooms, complemented by a stylish additional shower room, making the layout perfectly suited to growing families or those seeking versatile accommodation. The property has undergone extensive improvement works including a full electrical rewire, new plumbing throughout, soundproofing to both adjoining walls, new subflooring to the first and second floors, a newly fitted master ensuite and an additional modern shower room. Finished in neutral tones throughout, this home is ready to move straight into and offers both space and quality in a highly desirable SE4 location. The area is renowned for its excellent local amenities and outstanding schools, including Gordonbrock Primary School and Prendergast both rated Outstanding by Ofsted.

Tenure Freehold
London Borough of Lewisham Council Tax Band - D
Energy Efficiency Rating - C

Talk to Kevin Ashton from Acorn (Estate agents in Brockley)

 

Use our calculator to work out potential mortgage repayments and stamp duty costs. Please note, these calculators are for general interest only and must not be relied on. Speak to our Mortgage Scout team for further information and advice. 

Powered by

Total Mortgage

£

Estimated Monthly Mortgage Payment

£

  • Powered by

Brockley Area Guide

Explore the areas we serve – from parks, entertainment and transport links, to shopping, eating and drinking.

Dive into property knowledge

Visit the AcornIntel knowledge-base, our library of articles to help you make sense of all things property, or send your questions to our panel of property experts.

Get your property valued

Looking to sell or let your property? Get a free property valuation from one of our experts.

Top