The Acorn Group is London’s largest multi-brand estate agency. We offer our clients the best brands, with the best people, in the best locations.

 

Close

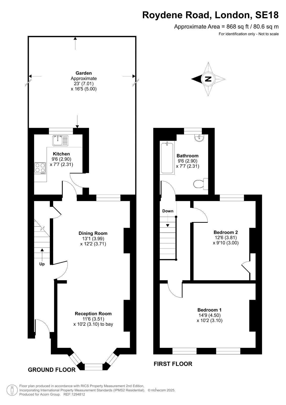
Asking price £399,995 freehold

Terraced House - Roydene Road, SE18

Offered to the market chain free is this two bedroom period home with first floor bathroom located moments from Plumstead High Street. Convenient for local shops, schools, Winns Common and local transport links.

The ground floor accommodation comprises a 11ft front reception room with double glazed bay window to the front and wood laminate flooring. There is a 13ft dining area with double glazed window to the rear, understairs storage and door to the kitchen. The kitchen is fitted with a range of wall and base units with complimentary work surfaces integrated oven, hob and filter hood. Space for further appliances and door leading to the rear garden.

To the first floor you will find two double bedrooms. The master bedroom, 14ft x 10ft, with carpet as fitted and double glazed windows to the front. The second bedroom, 12ft x 9ft, also has carpet as fitted, built in storage and double glazed window to the rear. There is a family bathroom with a three piece suite, comprising a low level WC, pedestal wash hand basin and panelled bath.

Externally there is a rear garden with patio area and raised lawn area.

Please note the sale of this property is subject to grant of probate.

Tenure – Freehold
The Royal Borough of Greenwich - Council Tax Band - C
Energy Efficiency Rating - D

Talk to William Chidley from John Payne (Estate agents in Plumstead Common)

 

Use our calculator to work out potential mortgage repayments and stamp duty costs. Please note, these calculators are for general interest only and must not be relied on. Speak to our Mortgage Scout team for further information and advice. 

Powered by

Total Mortgage

£

Estimated Monthly Mortgage Payment

£

  • Powered by

Area Guide

Explore the areas we serve – from parks, entertainment and transport links, to shopping, eating and drinking.

Dive into property knowledge

Visit the AcornIntel knowledge-base, our library of articles to help you make sense of all things property, or send your questions to our panel of property experts.

Get your property valued

Looking to sell or let your property? Get a free property valuation from one of our experts.

Top