The Acorn Group is London’s largest multi-brand estate agency. We offer our clients the best brands, with the best people, in the best locations.

 

Close

OIEO £925,000 freehold

Terraced House - Longhurst Road, SE13

This beautifully renovated Period terraced home is a true gem, blending period charm with modern comforts. Located on a highly sought-after road, it's within easy reach of Hither Green train station, offering quick access to London Bridge in just 10 minutes. Families will appreciate the proximity to outstanding primary schools, local shops, and parks including the popular Manor Park and Manor House Gardens.

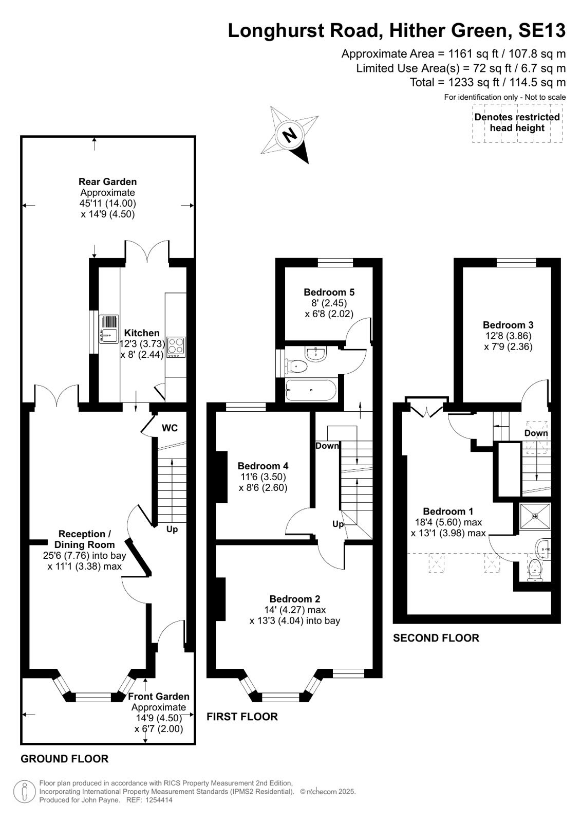
The accommodation offers a welcoming entrance hall, a ground floor WC, a spacious open plan lounge/dining, and a stylish, modern kitchen with doors leading to garden. The first floor features two double bedrooms, a smaller bedroom or study, and a contemporary bathroom. The second floor provides two additional double bedrooms and an En-suite shower room to the larger bedroom. Outside, the 45ft South/Westerly-facing Garden is perfect for sun lovers, offering a low-maintenance outdoor space.

With Hither Green station less than quarter of a mile away, Blackheath Village just a mile away, and various family-friendly amenities on hand, this location offers both convenience and a vibrant community feel. Energy Efficiency Rating of C.

OFFERED CHAIN FREE.

Talk to Chris Wadeson from John Payne (Estate agents in Lee)

 

Use our calculator to work out potential mortgage repayments and stamp duty costs. Please note, these calculators are for general interest only and must not be relied on. Speak to our Mortgage Scout team for further information and advice. 

Powered by

Total Mortgage

£

Estimated Monthly Mortgage Payment

£

  • Powered by

Lee Area Guide

Explore the areas we serve – from parks, entertainment and transport links, to shopping, eating and drinking.

Dive into property knowledge

Visit the AcornIntel knowledge-base, our library of articles to help you make sense of all things property, or send your questions to our panel of property experts.

Get your property valued

Looking to sell or let your property? Get a free property valuation from one of our experts.

Top