The Acorn Group is London’s largest multi-brand estate agency. We offer our clients the best brands, with the best people, in the best locations.

 

Close

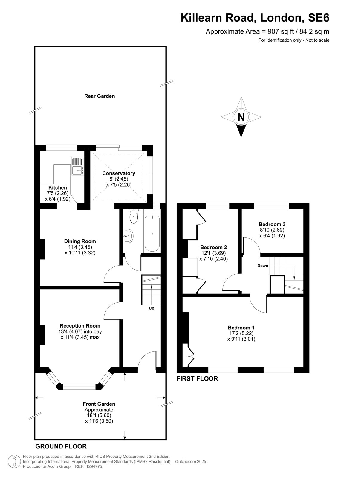
Asking price £450,000 freehold

Terraced House - Killearn Road, SE6

Acorn are thrilled to welcome to the market this mid terrace Period property on a highly popular road in Catford.

Within easy reach of ample amenities and transport links, the property is arranged over two floor and is offered with no onward chain.

The ground floor accommodation comprises bathroom, large front lounge with bay window, separate dining room, kitchen with fitted units, and conservatory. The first floor comprises three bedrooms.

Externally there is front and rear gardens, with the house lending itself well for rear and loft extensions subject to local planning permissions.

Talk to Jake Blackman from Acorn (Estate agents in Catford)

 

Use our calculator to work out potential mortgage repayments and stamp duty costs. Please note, these calculators are for general interest only and must not be relied on. Speak to our Mortgage Scout team for further information and advice. 

Powered by

Total Mortgage

£

Estimated Monthly Mortgage Payment

£

  • Powered by

Catford Area Guide

Explore the areas we serve – from parks, entertainment and transport links, to shopping, eating and drinking.

Dive into property knowledge

Visit the AcornIntel knowledge-base, our library of articles to help you make sense of all things property, or send your questions to our panel of property experts.

Get your property valued

Looking to sell or let your property? Get a free property valuation from one of our experts.

Top