The Acorn Group is London’s largest multi-brand estate agency. We offer our clients the best brands, with the best people, in the best locations.

 

Close

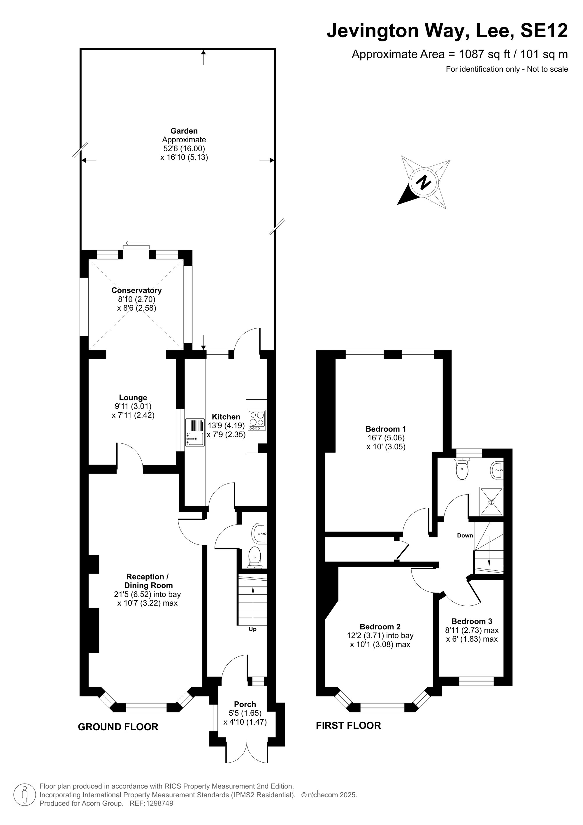
Asking price £465,000 freehold

Terraced House - Jevington Way, SE12

A 1930’s built, extended three bedroom mid terrace house requiring modernisation and situated in a popular residential road equidistant to both Lee and Grove Park train stations.

Accommodation comprises of an entrance hall, spacious through lounge, fitted kitchen, a further reception room leading to the conservatory. On the first floor there are three bedrooms and a shower room. The rear garden measures approximately 52 ft and there is a detached garage to the rear, accessed via a private road.

Jevington Way is very well located for a number of local amenities including the Crown Tavern Gastro pub. There are several highly sought after schools within walking distance including Eltham College, Eltham College Junior School and Colfes. Lee station (Zone 3) provides regular services into London Bridge, Cannon Street and Charing Cross and the 273 bus gives access to the DLR at Lewisham station within 15 minutes.

London Borough of Lewisham - Council Tax Band - D
Energy Efficiency Rating - D

Talk to Chris Wadeson from John Payne (Estate agents in Lee)

 

Use our calculator to work out potential mortgage repayments and stamp duty costs. Please note, these calculators are for general interest only and must not be relied on. Speak to our Mortgage Scout team for further information and advice. 

Powered by

Total Mortgage

£

Estimated Monthly Mortgage Payment

£

  • Powered by

Lee Area Guide

Explore the areas we serve – from parks, entertainment and transport links, to shopping, eating and drinking.

Dive into property knowledge

Visit the AcornIntel knowledge-base, our library of articles to help you make sense of all things property, or send your questions to our panel of property experts.

Get your property valued

Looking to sell or let your property? Get a free property valuation from one of our experts.

Top