The Acorn Group is London’s largest multi-brand estate agency. We offer our clients the best brands, with the best people, in the best locations.

 

Close

Guide price £325,000 freehold

Terraced House for sale - Howbury Lane, DA8

*Guide Price £325,000 to £350,000*

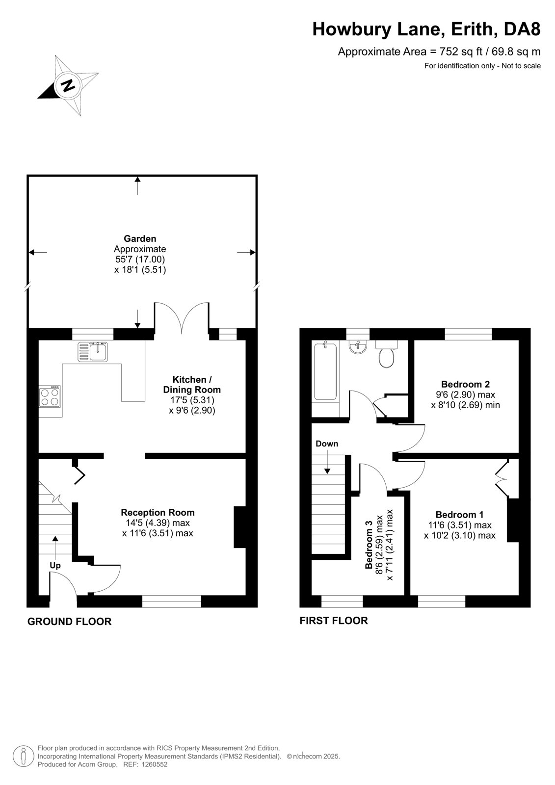
A well-maintained family home superbly located near Slade Green station overlooking Howbury Lane Park! The accommodation offers 752sqft of floorspace with a lovely front and back garden.

As you enter, you’ll find the front reception room on the right which is a generous size with a charming feature fireplace and bay window. Further along is the kitchen-diner fitted with a U-shaped design providing plenty of worktop space, room for a large dining table with pleasant views of the landscaped garden.

You can access the garden via the double doors leading out to the patio area which also has a separate lawn section. The garden is a suntrap throughout the day but also offers potential for buyers to add a rear extension without feeling like you’re comprising much space (which some neighbours have taken advantage off).

Upstairs offers a more traditional layout with access to three bedrooms and the family bathroom. Two of the bedrooms are great sizes whilst the third is a single room which could also make a great office for anyone working from home. The house has been lovingly maintained throughout the family’s ownership and a great opportunity for buyers to add value by putting their own stamp throughout with further potential to extend at the back or perhaps into the loft (STPP). Additional benefits include double glazing, gas central heating, replaced roof and offered to the market chain free.

Howbury Lane is ideal for families with access to plenty of local amenities nearby, you can find a handy Local Morrisons by the station (0.2m walk). There is a great choice of schools and nurseries within the area, as well as a variety of parks to enjoy with one across the road! Erith shopping centre has a range of stores, cafes, restaurants, coffee shops, takeaways and Morrisons supermarket. Slade Green station is just 0.2m walk which serves the Thameslink & Southeastern line into the city; Abbey Wood is only three stops away (sometimes direct) which has the brand-new Elizabeth Line with even more options into the city, fast and frequently!

We expect this house to be a popular choice, please contact our office on 0203 657 7660 to ask any questions or arrange a viewing.

London Borough of Bexley - Council Tax Band - C
Energy Efficiency Rating - D

Talk to Arikson Franco from Acorn (Estate agents in Northumberland Heath)

 

Use our calculator to work out potential mortgage repayments and stamp duty costs. Please note, these calculators are for general interest only and must not be relied on. Speak to our Mortgage Scout team for further information and advice. 

Powered by

Total Mortgage

£

Estimated Monthly Mortgage Payment

£

  • Powered by

Northumberland Heath Area Guide

Explore the areas we serve – from parks, entertainment and transport links, to shopping, eating and drinking.

Dive into property knowledge

Visit the AcornIntel knowledge-base, our library of articles to help you make sense of all things property, or send your questions to our panel of property experts.

Get your property valued

Looking to sell or let your property? Get a free property valuation from one of our experts.

Top