The Acorn Group is London’s largest multi-brand estate agency. We offer our clients the best brands, with the best people, in the best locations.

 

Close

Guide price £350,000 freehold

Terraced House for sale - Hearns Road, BR5

** GUIDE PRICE £350,000 - £375,000 ***

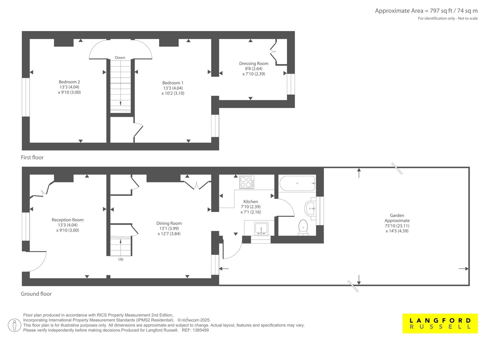
Langford Russell are pleased to present this beautifully renovated two-bedroom period terraced home, ideally located on a quiet residential road in Orpington. This charming property combines character features with modern finishes and is well positioned for local schools, transport links, and everyday amenities, making it perfect for first-time buyers and those looking to step onto the property ladder.

The ground floor comprises a bright and welcoming front reception room. To the rear, there is a separate dining room providing an ideal space for entertaining, which in turn leads through to a well-appointed fitted kitchen with integrated appliances. A modern three-piece family bathroom completes the ground floor accommodation. The layout flows well and makes excellent use of the available space.

To the first floor are two well-proportioned bedrooms, both offering comfortable accommodation. The principal bedroom further benefits from an adjoining dressing room, providing valuable additional storage and flexibility.

Externally, the property enjoys a generous rear garden, mainly laid to lawn with space for outdoor seating, making it ideal for relaxing, entertaining, or family use.

Hearns Road is conveniently located just a 13 minute walk from St Mary Cray Station, with regular direct services to London Victoria and Blackfriars, the property also benefits from excellent bus connections. The popular Nugent Shopping Centre is just 0.5 miles away, offering a variety of shops, cafes, and restaurants.

Highly recommended to view, this delightful home offers a fantastic opportunity for buyers seeking a beautifully presented property ready to move into.

Tenure - Freehold
Council Tax London Borough Of Bromley Tax Band - C
Energy Efficiency Rating - E

Talk to Oliver Pettman from Langford Russell (Estate agents in Orpington)

 

Use our calculator to work out potential mortgage repayments and stamp duty costs. Please note, these calculators are for general interest only and must not be relied on. Speak to our Mortgage Scout team for further information and advice. 

Powered by

Total Mortgage

£

Estimated Monthly Mortgage Payment

£

  • Powered by

Orpington Area Guide

Explore the areas we serve – from parks, entertainment and transport links, to shopping, eating and drinking.

Dive into property knowledge

Visit the AcornIntel knowledge-base, our library of articles to help you make sense of all things property, or send your questions to our panel of property experts.

Get your property valued

Looking to sell or let your property? Get a free property valuation from one of our experts.

Top