The Acorn Group is London’s largest multi-brand estate agency. We offer our clients the best brands, with the best people, in the best locations.

 

Close

Asking price £350,000 freehold

Terraced House for sale - Hartville Road, SE18

Welcomed to the SE18 market is this two double bedroom period home located just off Plumstead High Street. Convenient for local shops, bus routes and mainline station.

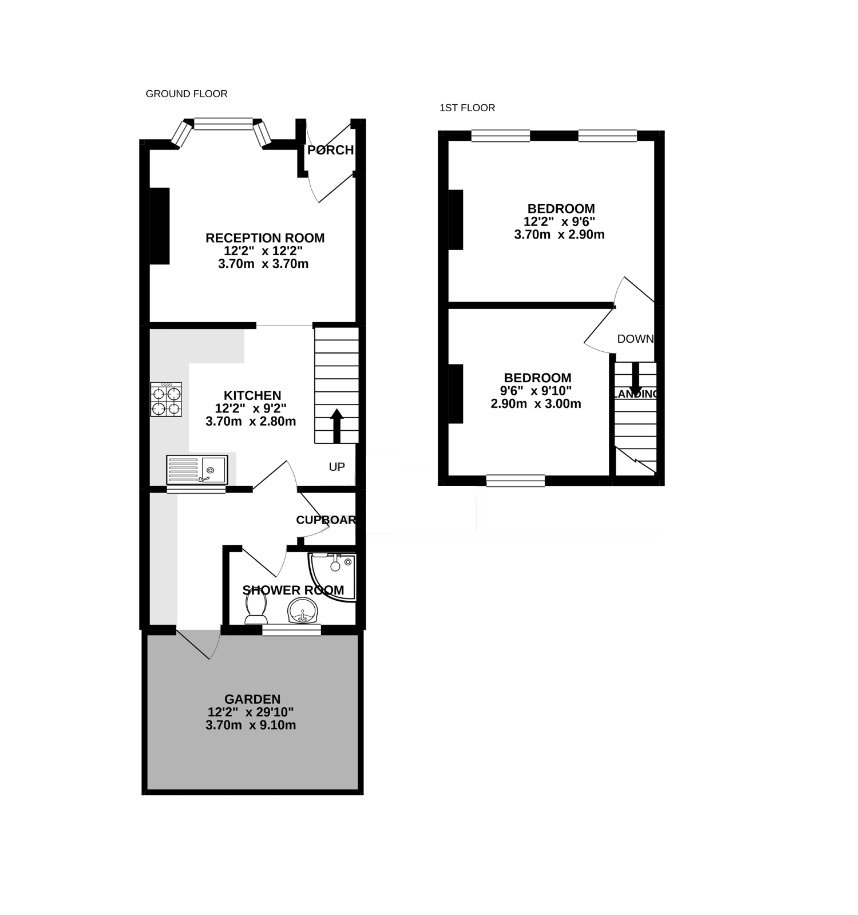
On entering the property you are welcomed to a 12ft lounge with double glazed bay window and carpet as fitted. There is a fitted kitchen with a ranged of wall and base units with complimentary work surfaces. Integrated oven and hob. There is an inner lobby/utility room plumbed for washing machine and provides access to a ground floor shower room fitted with a three piece suite comprising a walk in shower, pedestal wash hand basin and low level WC.

To the first floor you will find two double bedrooms. The master bedroom, 12ft x 9ft, with carpet as fitted and two double glazed windows to the front. Bedroom two, 9ft x 9ft, with carpet as fitted and double glazed window to the rear.

Externally there is a private rear garden mainly laid to lawn with paved patio area.

This is an ideal first time buyer so to fully appreciate this fantastic property, an internal viewing is highly recommended.

The Royal Borough of Greenwich - Council Tax Band - C
Energy Efficiency Rating - D

Talk to William Chidley from John Payne (Estate agents in Plumstead Common)

 

Use our calculator to work out potential mortgage repayments and stamp duty costs. Please note, these calculators are for general interest only and must not be relied on. Speak to our Mortgage Scout team for further information and advice. 

Powered by

Total Mortgage

£

Estimated Monthly Mortgage Payment

£

  • Powered by

Area Guide

Explore the areas we serve – from parks, entertainment and transport links, to shopping, eating and drinking.

Dive into property knowledge

Visit the AcornIntel knowledge-base, our library of articles to help you make sense of all things property, or send your questions to our panel of property experts.

Get your property valued

Looking to sell or let your property? Get a free property valuation from one of our experts.

Top