The Acorn Group is London’s largest multi-brand estate agency. We offer our clients the best brands, with the best people, in the best locations.

 

Close

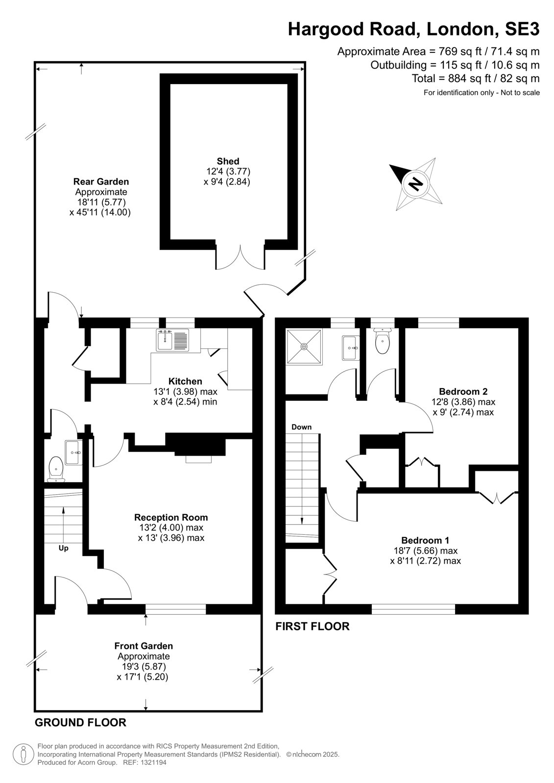
OIEO £455,000 freehold

Terraced House for sale - Hargood Road, SE3

Delightful, two-bedroom house situated close to superb transportation and convenient shopping facilities.

The current owner has recently upgraded the property recently including double glazing, installed a ground floor WC, insulated external walls, and recently installed a summer house in the garden.

This wonderful home offers good sized accommodation throughout which comprises; a spacious reception room, kitchen and downstairs WC completes the ground floor. On the first floor you will find two large double bedrooms and a modern shower room. To the rear of the property is an expansive garden with a large summer house with power. To the front of the house is off street parking for a large family car boasting an EV power point.

Located close to Kidbrooke Station with its good train links across London and Blackheath Village with its boutique style shops and cafe culture, beautiful farmers market, and the heath itself is close by.

Green field sites nearby include Kidbrooke playing fields, Hornfair Park, Woolwich Common and the beautiful Oxleas Woods with its Severndroog Castle

In terms of location, the property is conveniently situated with easy access to local amenities and transport links, making it an ideal choice for those seeking a blend of comfort and convenience.

Tenure – Freehold
The Royal Borough of Greenwih - Council Tax Band - C
Energy Efficiency Rating - D

Talk to Will McElligott from John Payne (Estate agents in Blackheath Standard)

 

Use our calculator to work out potential mortgage repayments and stamp duty costs. Please note, these calculators are for general interest only and must not be relied on. Speak to our Mortgage Scout team for further information and advice. 

Powered by

Total Mortgage

£

Estimated Monthly Mortgage Payment

£

  • Powered by

Blackheath Standard Area Guide

Explore the areas we serve – from parks, entertainment and transport links, to shopping, eating and drinking.

Dive into property knowledge

Visit the AcornIntel knowledge-base, our library of articles to help you make sense of all things property, or send your questions to our panel of property experts.

Get your property valued

Looking to sell or let your property? Get a free property valuation from one of our experts.

Top