The Acorn Group is London’s largest multi-brand estate agency. We offer our clients the best brands, with the best people, in the best locations.

 

Close

Asking price £775,000 shareOfFreehold

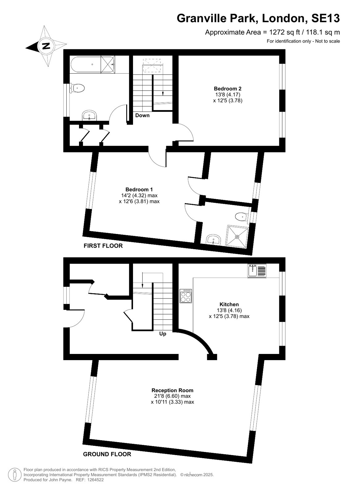
Terraced House for sale - Granville Park, SE13

This stylish two storey maisonette is within a sought after development of 'warehouse' style apartments. Located at the top of Granville Park with the open Heath just moments away and Lewisham mainline and DLR stations at the bottom with easy links to Canary Wharf.

The well planned layout and bright accommodation offers ample entertaining space through your own entrance leading to a large lounge/dining area then into a spacious modern kitchen. On the first floor comes two double bedrooms, the master with en-suite and dressing room and a further luxury bathroom. The property is offered in excellent order throughout and comes with secure allocated parking as well as well tended communal grounds. An early internal inspection is a must.
Offered for sale with no chain.

Share of Freehold: 125 years from 25 March 1998
Service Charge: £2224 PA
Ground Rent: N/A

Talk to Richard O'Toole from John Payne (Estate agents in Blackheath)

 

Use our calculator to work out potential mortgage repayments and stamp duty costs. Please note, these calculators are for general interest only and must not be relied on. Speak to our Mortgage Scout team for further information and advice. 

Powered by

Total Mortgage

£

Estimated Monthly Mortgage Payment

£

  • Powered by

Blackheath Area Guide

Explore the areas we serve – from parks, entertainment and transport links, to shopping, eating and drinking.

Dive into property knowledge

Visit the AcornIntel knowledge-base, our library of articles to help you make sense of all things property, or send your questions to our panel of property experts.

Get your property valued

Looking to sell or let your property? Get a free property valuation from one of our experts.

Top