The Acorn Group is London’s largest multi-brand estate agency. We offer our clients the best brands, with the best people, in the best locations.

 

Close

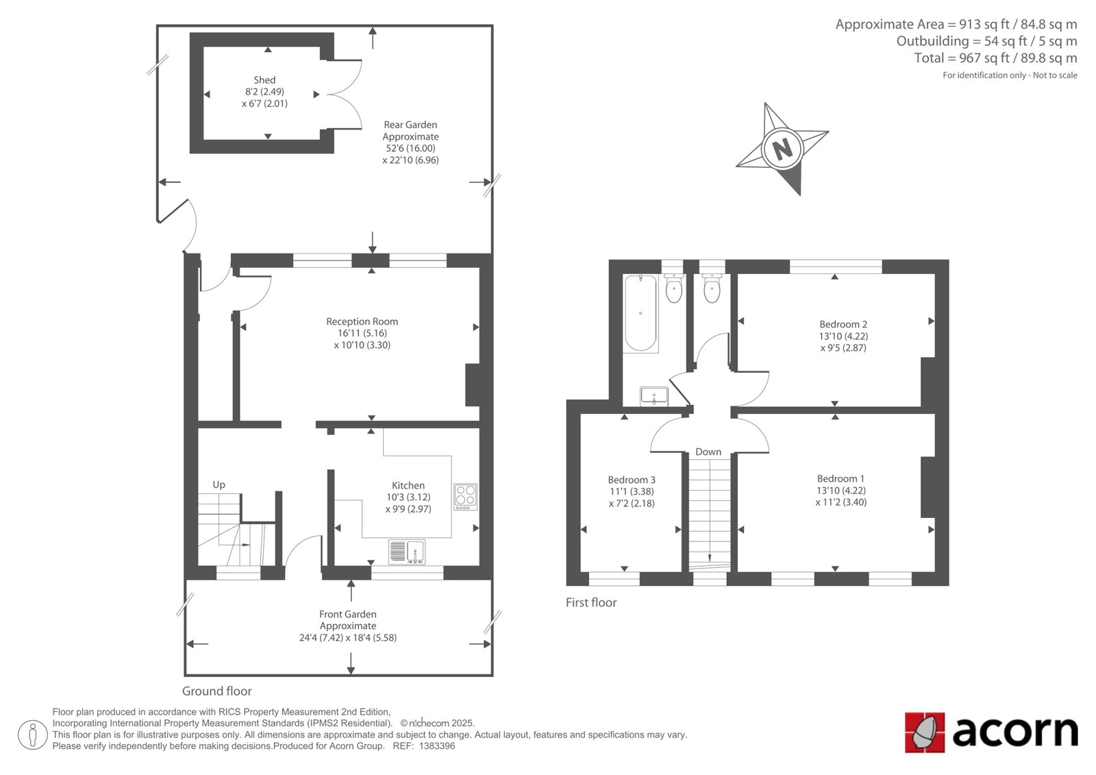
Offers in the Region of £475,000 freehold

Terraced House for sale - Grangemill Way, SE6

** Chain Free **

Acorn are delighted to welcome to the market this bright and spacious mid terrace family home, located well for access to transport links.

Within a short walk to Catford's Rail Stations, the accommodation on the ground floor comprises large kitchen with ample fitted units, spacious lounge with garden views, and large storage space just off of the lounge.

The first floor offers three well-proportioned bedrooms, separate WC and family bathroom.

Externally and to the front there is a large driveway, and to the rear a good size South facing garden with a mix of patio and turf.

London Borough of Lewisham - Council Tax Band - C
Energy Efficiency Rating - D

Talk to Jake Blackman from Acorn (Estate agents in Catford)

 

Use our calculator to work out potential mortgage repayments and stamp duty costs. Please note, these calculators are for general interest only and must not be relied on. Speak to our Mortgage Scout team for further information and advice. 

Powered by

Total Mortgage

£

Estimated Monthly Mortgage Payment

£

  • Powered by

Catford Area Guide

Explore the areas we serve – from parks, entertainment and transport links, to shopping, eating and drinking.

Dive into property knowledge

Visit the AcornIntel knowledge-base, our library of articles to help you make sense of all things property, or send your questions to our panel of property experts.

Get your property valued

Looking to sell or let your property? Get a free property valuation from one of our experts.

Top