The Acorn Group is London’s largest multi-brand estate agency. We offer our clients the best brands, with the best people, in the best locations.

 

Close

Guide price £375,000 freehold

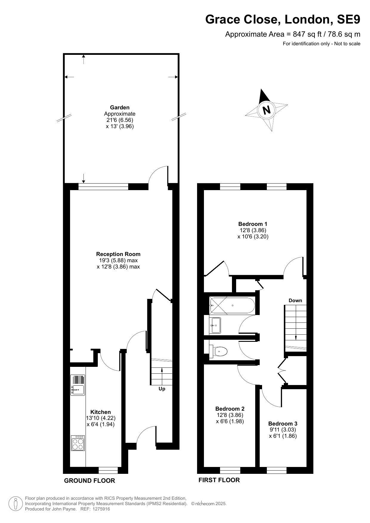
Terraced House - Grace Close, SE9

**GUIDE PRICE £375,000 TO £395,000**

Tucked away in a quiet residential close just off Dunkery Road, this well-proportioned three-bedroom terrace home offers a perfect blend of comfort, and convenience.

Step into a welcoming entrance hall that leads through to a generously sized reception room — ideal for relaxing or entertaining — with direct access to a well-appointed kitchen and a secluded, south-facing garden that captures the sun throughout the day.

Upstairs, you’ll find three good-sized bedrooms and a family bathroom, providing ample space for families or those looking to upsize.
Located just 0.9 miles from Grove Park station, the property is well-connected for commuters, while the surrounding area is rich in green spaces including the nearby Foxes Field — perfect for weekend strolls or time outdoors with the family.

An ideal opportunity for first-time buyers, young families, or investors looking for a home in a sought-after SE9 location.

Talk to Oliver Henness from John Payne (Estate agents in Eltham)

 

Use our calculator to work out potential mortgage repayments and stamp duty costs. Please note, these calculators are for general interest only and must not be relied on. Speak to our Mortgage Scout team for further information and advice. 

Powered by

Total Mortgage

£

Estimated Monthly Mortgage Payment

£

  • Powered by

Eltham Area Guide

Explore the areas we serve – from parks, entertainment and transport links, to shopping, eating and drinking.

Dive into property knowledge

Visit the AcornIntel knowledge-base, our library of articles to help you make sense of all things property, or send your questions to our panel of property experts.

Get your property valued

Looking to sell or let your property? Get a free property valuation from one of our experts.

Top