The Acorn Group is London’s largest multi-brand estate agency. We offer our clients the best brands, with the best people, in the best locations.

 

Close

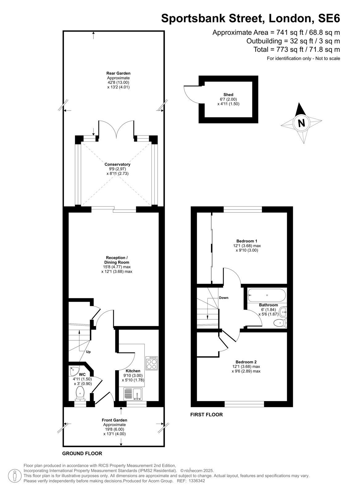
Asking price £425,000 freehold

Terraced House - Fleet Terrace, London, SE6

Acorn are thrilled to welcome to the market this well laid out freehold house.

Enviably located for access to ample transport links and amenities, the property externally boasts front parking and a large south facing rear garden.

Internally and on the ground floor, the accommodation comprises WC, fitted kitchen with ample storage, and a large lounge diner with sliding doors out onto the garden. The first floor comprises two double bedrooms and bathroom.

An ideal first time purchase, Catford Rail Station is within a short walk.

Freehold
Council Tax Band: C
Energy Efficiency Rating: C

Talk to Jake Blackman from Acorn (Estate agents in Catford)

 

Use our calculator to work out potential mortgage repayments and stamp duty costs. Please note, these calculators are for general interest only and must not be relied on. Speak to our Mortgage Scout team for further information and advice. 

Powered by

Total Mortgage

£

Estimated Monthly Mortgage Payment

£

  • Powered by

Catford Area Guide

Explore the areas we serve – from parks, entertainment and transport links, to shopping, eating and drinking.

Dive into property knowledge

Visit the AcornIntel knowledge-base, our library of articles to help you make sense of all things property, or send your questions to our panel of property experts.

Get your property valued

Looking to sell or let your property? Get a free property valuation from one of our experts.

Top