The Acorn Group is London’s largest multi-brand estate agency. We offer our clients the best brands, with the best people, in the best locations.

 

Close

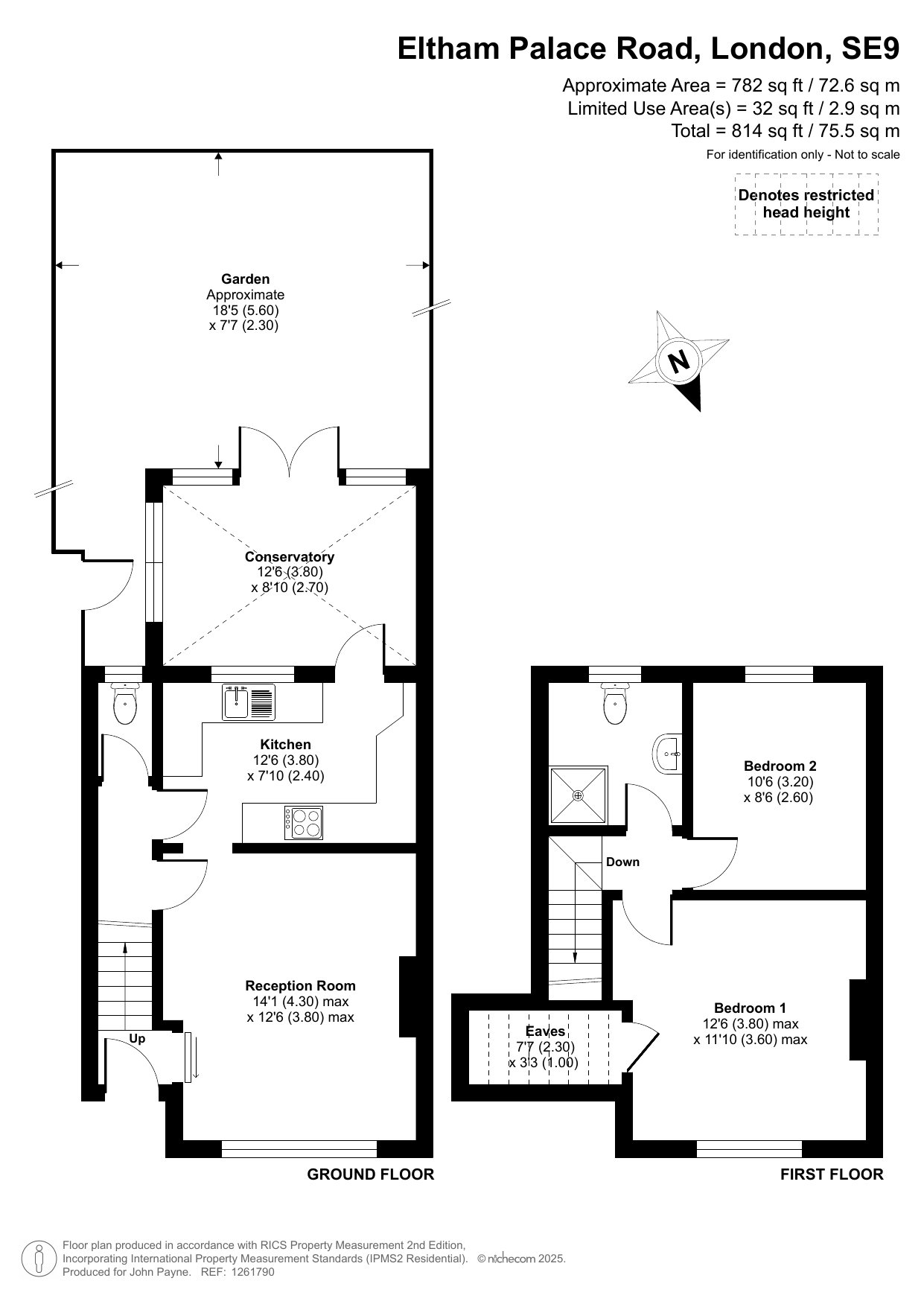
OIEO £425,000 freehold

Terraced House - Eltham Palace Road, SE9

A charming terraced house boasting two well-proportioned bedrooms, located in a sought-after residential area. This delightful property features a lovely garden, perfect for relaxing or entertaining guests. The house also benefits from off-street parking, providing convenience for residents and visitors alike. The interior of the house is tastefully decorated and offers a comfortable living space for individuals or families.

The location is second to none, providing a short and easy walk into Eltham High Street which offers comprehensive shopping, bars, restaurants and the recently built Vue cinema. Eltham Station is only 1 mile away which offers fast and frequent direct services into London Bridge, Waterloo East, Cannon Street, Charing Cross & London Victoria. If there is ever a problem with the line, Mottingham Station is also only 1.1 miles away and provides easy access into London Bridge. There is a selection of schools within reasonable distance including Eltham Hill school for Girls, Middle Park Primary School, Haimo Primary School & Ofsted outstanding Harris Academy Greenwich & Eltham CofE Primary.

There are many green spaces available within reasonable distance; Sutcliffe Park, Eltham Park North & South and Eltham Palace to name a few. The closest would be Queenscroft Park a short walk from your front door.

Talk to Oliver Henness from John Payne (Estate agents in Eltham)

 

Use our calculator to work out potential mortgage repayments and stamp duty costs. Please note, these calculators are for general interest only and must not be relied on. Speak to our Mortgage Scout team for further information and advice. 

Powered by

Total Mortgage

£

Estimated Monthly Mortgage Payment

£

  • Powered by

Eltham Area Guide

Explore the areas we serve – from parks, entertainment and transport links, to shopping, eating and drinking.

Dive into property knowledge

Visit the AcornIntel knowledge-base, our library of articles to help you make sense of all things property, or send your questions to our panel of property experts.

Get your property valued

Looking to sell or let your property? Get a free property valuation from one of our experts.

Top