The Acorn Group is London’s largest multi-brand estate agency. We offer our clients the best brands, with the best people, in the best locations.

 

Close

Guide price £650,000 freehold

Terraced House for sale - Ellerdale Street, SE13

*Guide Price of £650,000 - £675,000*

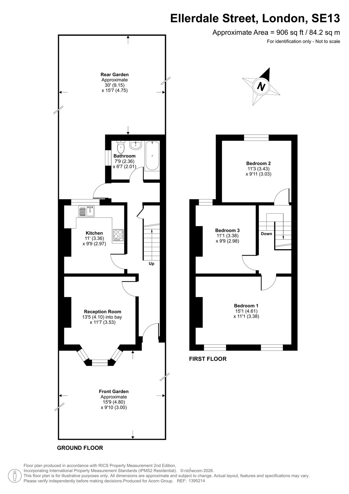
This newly renovated family home is offered to the market chain free, located in Ladywell with plenty of local amenities nearby including Lewisham Railway & DLR 0.3m – ideal for commuters. The accommodation offers a total 906sqft of floorspace across two floors, the ground floor comprises a front traditional reception room with a charming bay-window oozing natural light in. Next along is the smart kitchen, which has the option to be knocked-through (Subject to approval) to create an open plan living space or perhaps extended at the back to have a kitchen-diner! (STPP). The newly fitted kitchen has a L-shaped design with plenty of worktop space and some new appliances fitted. At the back is the stylish bathroom suite which is complemented with tiling across the walls and floor.

The private garden has a patio area to start with making it ideal for some garden furniture, whilst the back half has a lawn area. The owners are intending to lay some fresh lawn turf so the new owners can enjoy the garden in the upcoming summer. Upstairs you’ll find access to three generous double bedrooms with freshly laid carpets and neutrally decorated allow buyers to move straight in.

This bright and airy home is well maintained throughout with further scope to add value by extending into the loft (STPP) which some of the neighbours have done to generate even more internal space. Additional benefits include gas central heating, updated electrics, double glazing, and residents parking along the road.

Ellerdale Street is superbly located with plenty of amenities. Ladywell Village nearby offers a vibrant selection of boutique stores, cafes and the popular Ladywell Tavern, a gastro pub serving food & drink! Hilly Fields is also nearby which is a stunning park loved by residents locally.

Another popular attraction is the Brockley Market on Tressillian Road which has quirky pop-up stores. Lewisham Shopping centre has a range of branded stores, shops, restaurants, large Sainsburys supermarket and even more cafes/coffee shops to enjoy. Deptford, Greenwich, and Blackheath are all short commute with even more choice of local markets, museums, bars, restaurants, and the famous Greenwich Park to explore. For commuters, Lewisham Railway & DLR (Zone 2) is only 0.3m walk which offer various routes into the city, fast and frequently.

We expect this house to be a popular choice, please call our office to arrange a viewing or ask any questions!

Tenure Freehold
Local Authority Lewisham Council Tax Band C
Energy Efficiency Rating C

Talk to Jake Blackman from Acorn (Estate agents in Lewisham)

 

Use our calculator to work out potential mortgage repayments and stamp duty costs. Please note, these calculators are for general interest only and must not be relied on. Speak to our Mortgage Scout team for further information and advice. 

Powered by

Total Mortgage

£

Estimated Monthly Mortgage Payment

£

  • Powered by

Lewisham Area Guide

Explore the areas we serve – from parks, entertainment and transport links, to shopping, eating and drinking.

Dive into property knowledge

Visit the AcornIntel knowledge-base, our library of articles to help you make sense of all things property, or send your questions to our panel of property experts.

Get your property valued

Looking to sell or let your property? Get a free property valuation from one of our experts.

Top