The Acorn Group is London’s largest multi-brand estate agency. We offer our clients the best brands, with the best people, in the best locations.

 

Close

Asking price £600,000 freehold

Terraced House - Elibank Road, SE9

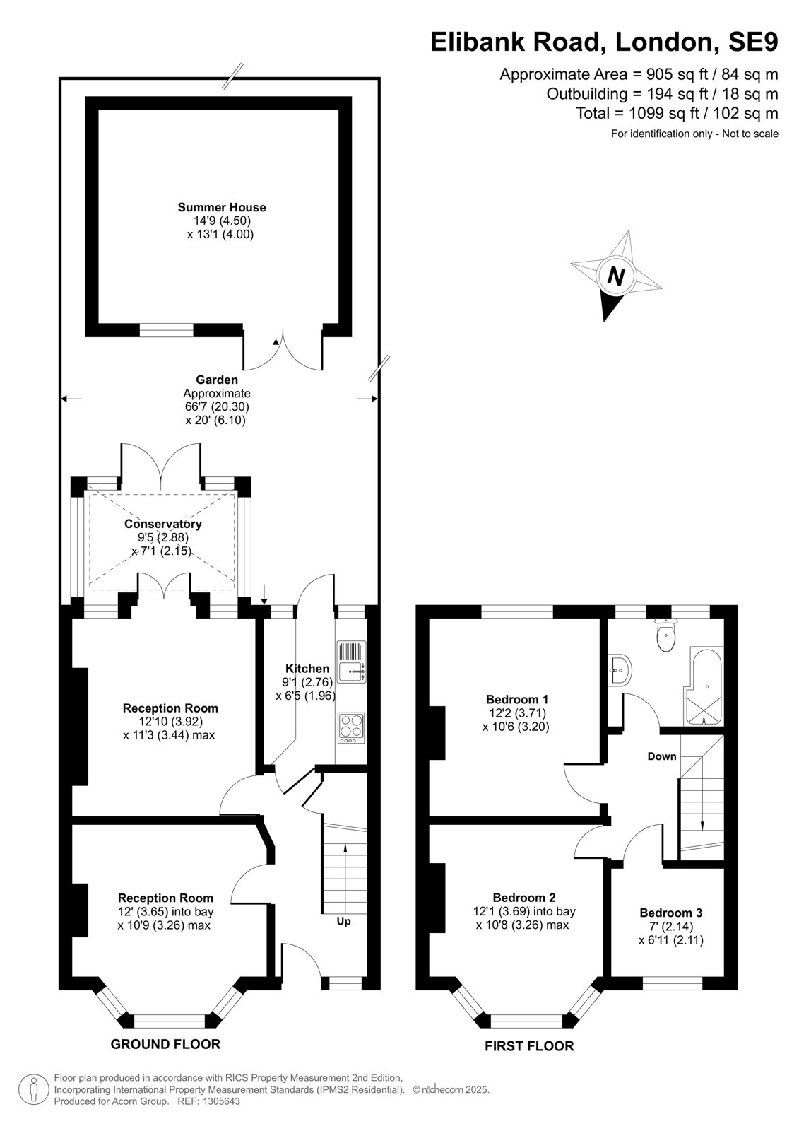
Situated on one of Eltham’s most sought-after residential roads, this charming 1930s-style terraced home offers the perfect blend of character and modern living. With a private driveway for two cars, this property is ideal for first-time buyers or young families looking for space, style, and convenience.

Inside, the home features two spacious reception rooms, a bright conservatory at the rear, and three bedrooms—two generous doubles and a well-sized single—making it both practical and versatile. A stylish, newly fitted bathroom and a fresh, modern décor add to the appeal.

The rear garden is south-facing and has been recently overhauled, creating a peaceful and private outdoor space. At the bottom of the garden, you'll find a fully equipped outbuilding with its own bathroom—perfect for a home office, guest suite, or studio.

There’s also significant potential to extend (STPP), making this home a fantastic long-term investment.

Located just 0.6 miles from Eltham Station, with excellent transport links into London, and moments from the popular Westmount Road—home to a range of local amenities including highly regarded bakeries and cafés—this home offers the perfect blend of tranquillity and city connectivity.

This is a rare opportunity to secure a stunning home in one of Eltham’s most popular locations. Early viewing is highly recommended.

The Royal Borough of Greenwich - Council Tax Band - D
Energy Efficiency Rating - D

Talk to Oliver Henness from John Payne (Estate agents in Eltham)

 

Use our calculator to work out potential mortgage repayments and stamp duty costs. Please note, these calculators are for general interest only and must not be relied on. Speak to our Mortgage Scout team for further information and advice. 

Powered by

Total Mortgage

£

Estimated Monthly Mortgage Payment

£

  • Powered by

Eltham Area Guide

Explore the areas we serve – from parks, entertainment and transport links, to shopping, eating and drinking.

Dive into property knowledge

Visit the AcornIntel knowledge-base, our library of articles to help you make sense of all things property, or send your questions to our panel of property experts.

Get your property valued

Looking to sell or let your property? Get a free property valuation from one of our experts.

Top