The Acorn Group is London’s largest multi-brand estate agency. We offer our clients the best brands, with the best people, in the best locations.

 

Close

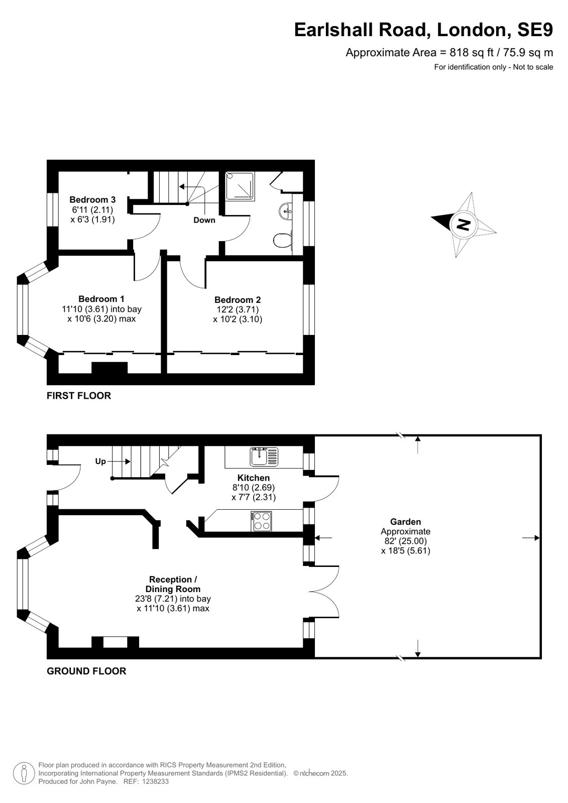
Asking price £550,000 freehold

Terraced House - Earlshall Road, SE9

A delightful three-bedroom 1930’s family home boasting spacious & well-lit accommodation throughout nestled on Earlshall Road, a charming residential street in the heart of Eltham.

Owned by and thoroughly maintained by the current vendors for over 30 years, is this superb family home in immaculate order whilst offering plenty of potential to extended (STPP) should you wish. The ground floor offers a large through lounge with bay window to front and French doors to the back leading out on to a well-maintained South facing garden. The kitchen is accessible from the hallway and is fitted with units with plenty of space for appliances, whilst also providing access to the garden.

The first floor presents three well proportioned & spacious bedrooms and a generous shower room.

The Vendors pride and joy is their south facing garden, first greeted by an Indian sandstone patio, then by mature shrubs and bushes, with a vegetable patch and shed to the rear. The most notable feature is the luscious lawn, which you are challenged to find a weed in when viewing!

Further benefits include – off street parking for two cars, double glazing, central heating, and potential to extend to the rear and in the loft subject to the necessary consents.

Positioned within Eltham Park, this house benefits from all of Eltham’s offerings including a variety of local primary & secondary schools, plenty of open green spaces and South East London’s best high street! Filled with great spots to eat at all times of the day, three food stores, a Vue Cinema & Marks Sky Bar!

Eltham Station is a mere 0.6mile walk away offering fast and frequent direct services into London Bridge, Waterloo East, Cannon Street, Charing Cross & London Victoria.. There is also a variety of locally renowned shops including Westmount Café & Eltham DIY available on Westmount Road.

Talk to Oliver Henness from John Payne (Estate agents in Eltham)

 

Use our calculator to work out potential mortgage repayments and stamp duty costs. Please note, these calculators are for general interest only and must not be relied on. Speak to our Mortgage Scout team for further information and advice. 

Powered by

Total Mortgage

£

Estimated Monthly Mortgage Payment

£

  • Powered by

Eltham Area Guide

Explore the areas we serve – from parks, entertainment and transport links, to shopping, eating and drinking.

Dive into property knowledge

Visit the AcornIntel knowledge-base, our library of articles to help you make sense of all things property, or send your questions to our panel of property experts.

Get your property valued

Looking to sell or let your property? Get a free property valuation from one of our experts.

Top