The Acorn Group is London’s largest multi-brand estate agency. We offer our clients the best brands, with the best people, in the best locations.

 

Close

Asking price £525,000 freehold

Terraced House for sale - Denton Terrace, Kent, DA5

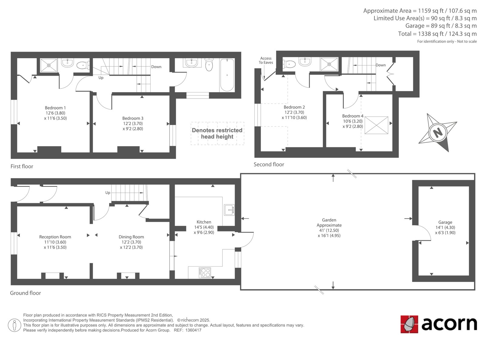
Step inside this beautifully presented four-bedroom family home and immediately sense the space and light that flows throughout. Arranged over three levels, the property is designed with family life in mind, offering generous proportions and a layout that balances style with practicality.

The ground floor opens into a versatile living space that flows naturally from front to back. The reception room, dining area and kitchen form an open plan arrangement, yet thanks to the sheer size each area can be enjoyed as its own distinct zone without interference. The kitchen itself is an impressive feature, extended to create a wide and well configured space that works beautifully for both everyday use and entertaining, with direct access to the rear garden.

Upstairs, the first floor hosts the principal bedroom complete with its own ensuite, alongside a further spacious bedroom and a modern family bathroom. Rising to the top level, two additional bedrooms await, including a second with ensuite facilities, offering privacy and flexibility that is ideal for guests, older children or even a home office if required.

Outside, the rear garden provides a private retreat for relaxation or play, while a detached garage to the back offers secure storage and the option for parking, particularly valuable given the on street parking to the front.

The location is equally appealing, blending peace with convenience. Local shops, amenities and surgeries are within easy reach, while excellent transport links including Bexley and Crayford stations and the B12 bus routes make commuting effortless. From Bexley station you can reach Abbey Wood in just 15 minutes, connecting you directly to the Elizabeth Line. For families, highly regarded schools including Maypole Primary, Joydens Wood Primary, Wilmington Grammar for Boys and Girls, and Beths Grammar Bexley are all close by, along with North Kent College for further education. For outdoor enthusiasts, Dartford Heath and Joydens Wood Woodlands are nearby, providing endless green space for walks, recreation and family adventures.

Denton Terrace isn’t just a house, it is a home designed for the rhythm of modern living, offering light, space, comfort and a location that perfectly balances accessibility with the beauty of nature.

Freehold
Dartford Borough Council - Tax Band: D
Energy Efficiency Rating: D

Talk to Daniel Langiano from Acorn (Estate agents in Bexleyheath)

 

Use our calculator to work out potential mortgage repayments and stamp duty costs. Please note, these calculators are for general interest only and must not be relied on. Speak to our Mortgage Scout team for further information and advice. 

Powered by

Total Mortgage

£

Estimated Monthly Mortgage Payment

£

  • Powered by

Bexleyheath Area Guide

Explore the areas we serve – from parks, entertainment and transport links, to shopping, eating and drinking.

Dive into property knowledge

Visit the AcornIntel knowledge-base, our library of articles to help you make sense of all things property, or send your questions to our panel of property experts.

Get your property valued

Looking to sell or let your property? Get a free property valuation from one of our experts.

Top