The Acorn Group is London’s largest multi-brand estate agency. We offer our clients the best brands, with the best people, in the best locations.

 

Close

Guide price £700,000 freehold

Terraced House for sale - Brookbank Road, SE13

Guide Price: £700,000 - £725,000
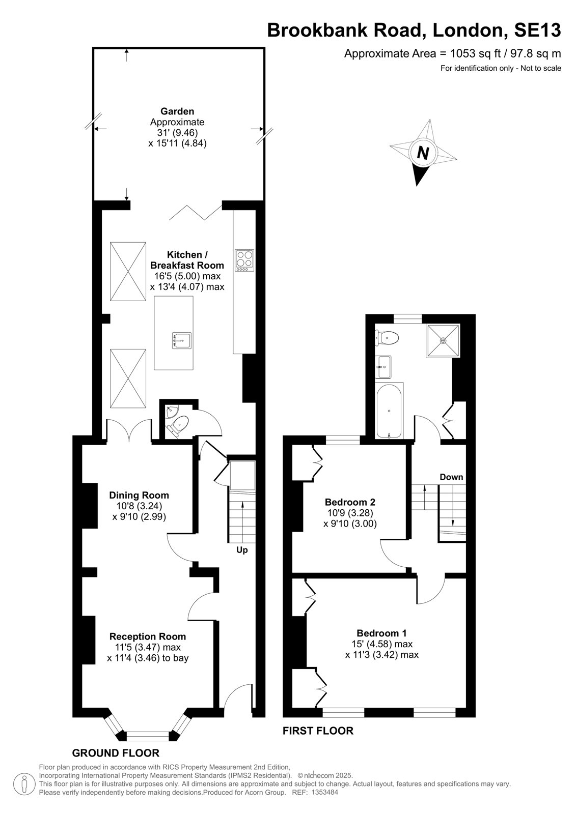
Immaculately presented throughout, the property has been thoughtfully extended and modernised while retaining its character and original charm. Upon entering, you're greeted by a bright and welcoming hallway that leads into a spacious through-lounge, adorned with original features such as high ceilings and decorative cornicing, complemented by tasteful, neutral décor and quality flooring throughout. To the rear, the property has been stylishly extended, creating a light-filled kitchen and dining space with modern fittings and ample storage. The centrepiece is a set of bifold doors that seamlessly open out to a beautifully maintained private garden, giving an ideal space for relaxing, entertaining, or enjoying al fresco dining during the warmer months.

Upstairs, the home offers two generous double bedrooms, each complete with fitted wardrobes, providing excellent storage without compromising on space. The bathroom is located to the rear, is finished to a high standard, featuring sleek tiling, modern fixtures, and a clean design.

Brookbank Road is within a sought-after location in Ladywell, a stone’s throw away from the popular Hilly Fields and plenty of local amenities close by! Lewisham Railway & DLR (Zone 2) is just 0.3m walk which has plenty of routes into the city for commuters. Lewisham shopping centre has a variety for boutique shops, branded stores, restaurants, cafes and coffee shops with a cinema planned to open soon. Ladywell Highstreet also a selection of shops, cafes, coffee shop and the popular local ‘Ladywell Tavern’ which serves food and drinks to enjoy as well as Ladywell Railway (Zone 3) as an alternative option to Lewisham Railway & DLR. Hilly Fields nearby is a stunning park with a café and many facilities to enjoy. Brockley Market is a popular event on every Saturday with quirky pop-up stores hosted on Tressillian Road and Deptford Market is just over a mile away also recommended, you’ll certainly be spoilt for choice with this home.

Talk to Max Smith from Acorn (Estate agents in Lewisham)

 

Use our calculator to work out potential mortgage repayments and stamp duty costs. Please note, these calculators are for general interest only and must not be relied on. Speak to our Mortgage Scout team for further information and advice. 

Powered by

Total Mortgage

£

Estimated Monthly Mortgage Payment

£

  • Powered by

Lewisham Area Guide

Explore the areas we serve – from parks, entertainment and transport links, to shopping, eating and drinking.

Dive into property knowledge

Visit the AcornIntel knowledge-base, our library of articles to help you make sense of all things property, or send your questions to our panel of property experts.

Get your property valued

Looking to sell or let your property? Get a free property valuation from one of our experts.

Top