The Acorn Group is London’s largest multi-brand estate agency. We offer our clients the best brands, with the best people, in the best locations.

 

Close

OIEO £575,000 freehold

Terraced House for sale - Bramdean Gardens, SE12

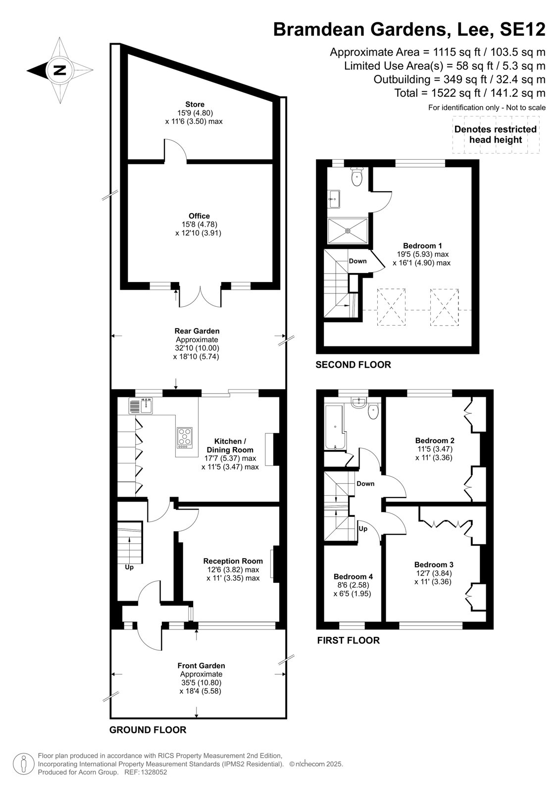
Set on a quiet residential road, this beautifully extended 1930s terraced house offers a superb blend of period charm and modern family living. With approximately 1115 sq ft of well-proportioned accommodation across three floors, this home is perfect for growing families seeking space, comfort, and convenience.

The ground floor boasts a separate front lounge and an impressive open-plan kitchen/dining room. Designed with both style and practicality in mind and bi-folding doors that open directly onto the rear garden, creating a seamless indoor-outdoor experience.
Upstairs, the first floor comprises three bedrooms and a sleek contemporary family bathroom. The top floor showcases a generously sized master bedroom complete with fitted wardrobes and a private en-suite shower room.
Externally, the property benefits from a good-sized rear garden, ideal for family gatherings or summer entertaining and a large home office with additional storage room to the rear.


Location Highlights:
• Within easy reach of both Lee and Hither Green stations, offering fast and frequent services to London Bridge, Charing Cross, and Cannon Street.
• Moments from Blackheath Village and Lewisham Town Centre, with DLR connections for quick access to Canary Wharf and the City and access to the “Superloop” bus with its frequent service to Canary Wharf.
• Surrounded by an excellent selection of shops, cafés, and Ofsted-rated schools.
• Enjoy plenty of green space with nearby Northbrook Park and the ever-popular Manor House Gardens.

This fantastic home ticks all the boxes for location, space, and lifestyle – early viewing is highly recommended.

Tenure – Freehold
Lewisham Council - Council Tax Band - D
Energy Efficiency Rating - D

Talk to Chris Wadeson from John Payne (Estate agents in Lee)

 

Use our calculator to work out potential mortgage repayments and stamp duty costs. Please note, these calculators are for general interest only and must not be relied on. Speak to our Mortgage Scout team for further information and advice. 

Powered by

Total Mortgage

£

Estimated Monthly Mortgage Payment

£

  • Powered by

Lee Area Guide

Explore the areas we serve – from parks, entertainment and transport links, to shopping, eating and drinking.

Dive into property knowledge

Visit the AcornIntel knowledge-base, our library of articles to help you make sense of all things property, or send your questions to our panel of property experts.

Get your property valued

Looking to sell or let your property? Get a free property valuation from one of our experts.

Top