The Acorn Group is London’s largest multi-brand estate agency. We offer our clients the best brands, with the best people, in the best locations.

 

Close

Guide price £1,000,000 freehold

Terraced House for sale - Algernon Road, London, SE13

Guide Price £1,000,000 - £1,050,000

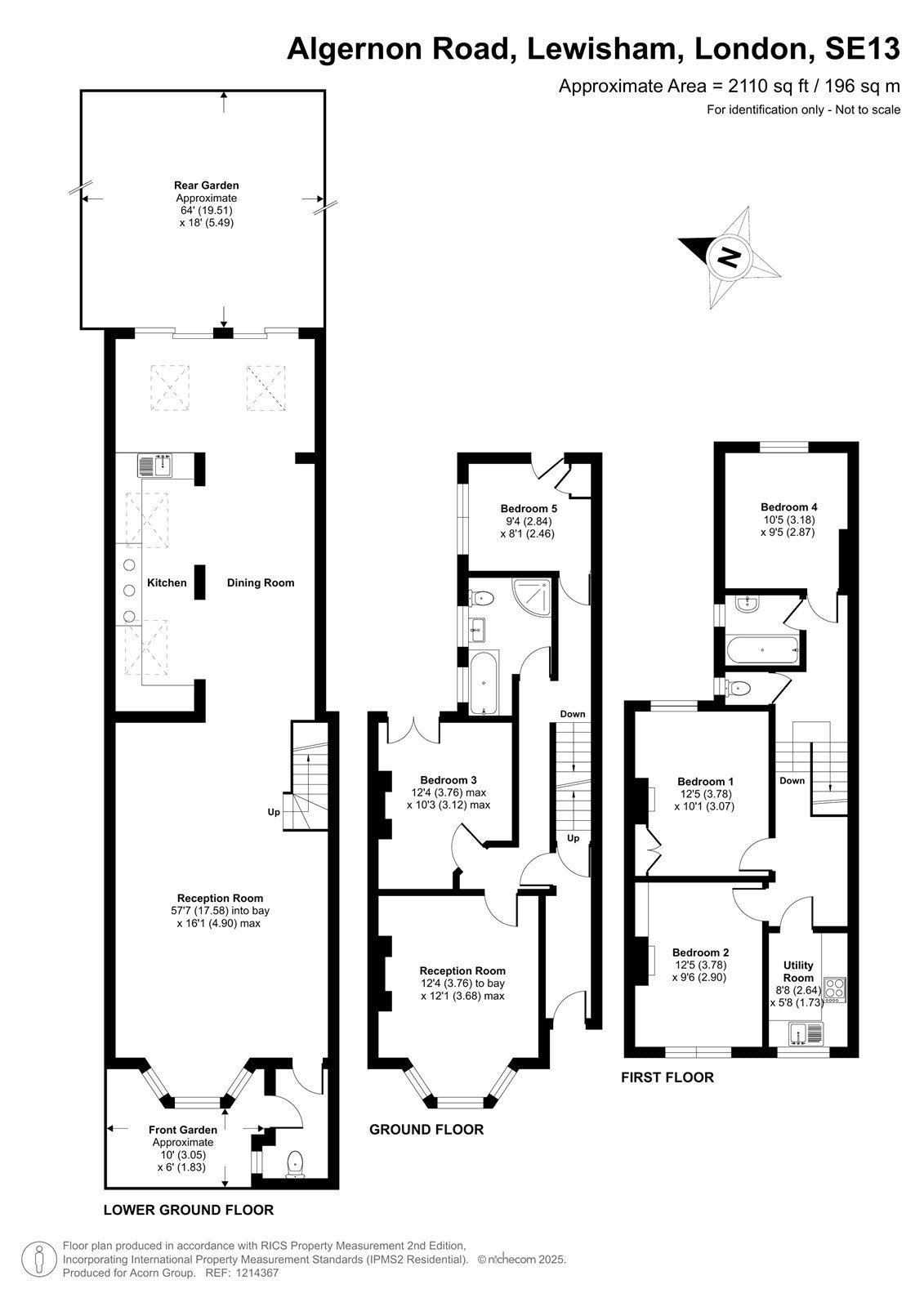
A charming three storey period home located within the sought after Ladywell Conservation area, the accommodation offers an impressive 2110sqft of floorspace with scope to further extend and add value (STPP).

Starting with the lower ground which was excavated (over 30 years ago) to create a huge open-plan dynamic, the front part offers a lovely entertainment space for large sofas, leaving plenty of room for dining table and perhaps even an office space if needed. The smart kitchen has units across the wall and features a large range cooker, lots of work top space and further leads to an extension at the back with bi-folding doors overlooking the landscaped garden. Up to the ground floor comprises the front traditional reception room (this could also be used as a bedroom if preferred), two double bedrooms and the family bathroom suite. The first floor offers three additional double bedrooms (five in total), another bathroom suite and a bonus utility room, which the owner currently rents out to lodgers, however it could easily be converted into a smart office space ideal for anyone working from home. This home is neutrally decorated throughout with some original features retained, including some cast iron fireplaces in the bedrooms maintaining the characterful charm throughout. This is a great opportunity for buyers to add value and create their dream home by modernising it to their taste. Additional benefits include double glazing, gas central heating, updated electrics, residents parking and scope to extend (STPP & Approval).

Algernon Road is a sought-after location near Ladywell Village at the end of the road which offers a range of cafes, coffee shops and boutique stores and the popular Ladywell Tavern, a gastro pub serving food & drink! Hilly Fields is also nearby which is a stunning park loved by residents locally. Another popular attraction is the Brockley Market on Tressillian Road which has quirky pop-up stores. For commuters, Ladywell Railway (Zone 3) is only 0.3m walk which goes into London bridge via Charing cross or alternatively you have a lot more options into the city by using Lewisham Railway & DLR (Zone 2) which is only 0.5m walk. Lewisham Shopping centre also offers a range of branded stores, shops, restaurants, and even more cafes/coffee shops to enjoy.

Please call our office to ask any questions or arrange a viewing on 0208 8524455.

Freehold
Lewisham Council - Tax Band: C
Energy Efficiency Rating: D

Talk to Jake Blackman from Acorn (Estate agents in Lewisham)

 

Use our calculator to work out potential mortgage repayments and stamp duty costs. Please note, these calculators are for general interest only and must not be relied on. Speak to our Mortgage Scout team for further information and advice. 

Powered by

Total Mortgage

£

Estimated Monthly Mortgage Payment

£

  • Powered by

Lewisham Area Guide

Explore the areas we serve – from parks, entertainment and transport links, to shopping, eating and drinking.

Dive into property knowledge

Visit the AcornIntel knowledge-base, our library of articles to help you make sense of all things property, or send your questions to our panel of property experts.

Get your property valued

Looking to sell or let your property? Get a free property valuation from one of our experts.

Top