The Acorn Group is London’s largest multi-brand estate agency. We offer our clients the best brands, with the best people, in the best locations.

 

Close

Asking price £500,000 freehold

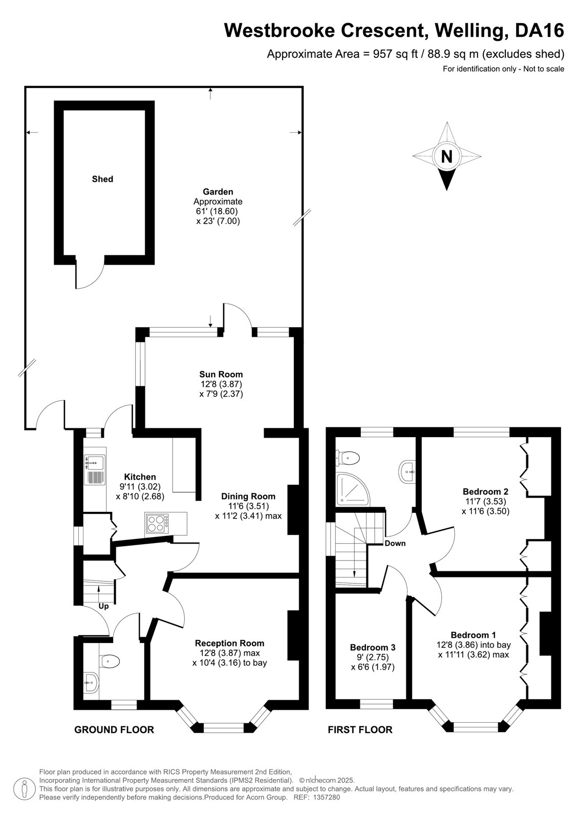
Semi-detached House for sale - Westbrooke Crescent, DA16

Acorn are proud to introduce this charming and well-maintained semi-detached house, presenting a wonderful opportunity for a new homeowner. Boasting three bedrooms, this cosy property offers a comfortable and homely atmosphere perfect for families or individuals alike. The house is bright and well-lit, creating a peaceful and serene living space. Situated in a quiet and secluded area, this property provides a secure and tranquil environment for its residents. The house also features a lovely garden, ideal for outdoor relaxation or entertaining guests. Additionally, off-street parking adds convenience for those with vehicles. With its affordable price and desirable features, this property offers a fantastic opportunity to own a beautiful home in a sought-after location.

Welling has fast become very desirable and offers everything you would expect from a local high street, including a wide range of supermarkets, shops, restaurants, and pubs. Transport links are plentiful with bus routes to surrounding areas including Bexleyheath, Blackheath, North Greenwich (The O2) Bluewater and Abbey Wood with the Elizabeth Line. Welling Station is only 1 mile away and offers direct links to London Bridge, Charing Cross, Cannon Street, Waterloo East & Victoria. Changes are possible at Lewisham for the DLR and New Cross for the East London Line. Crook Log Leisure Centre & The Broadway Shopping Centre are also within reasonable distance.

Don't miss out on this wonderful opportunity - schedule a viewing today!

Local Authority: Bexley
Council Tax Band: D
EPC Rating: C
Tenure: Freehold

Talk to Matthew King from Acorn (Estate agents in Welling)

 

Use our calculator to work out potential mortgage repayments and stamp duty costs. Please note, these calculators are for general interest only and must not be relied on. Speak to our Mortgage Scout team for further information and advice. 

Powered by

Total Mortgage

£

Estimated Monthly Mortgage Payment

£

  • Powered by

Welling Area Guide

Explore the areas we serve – from parks, entertainment and transport links, to shopping, eating and drinking.

Dive into property knowledge

Visit the AcornIntel knowledge-base, our library of articles to help you make sense of all things property, or send your questions to our panel of property experts.

Get your property valued

Looking to sell or let your property? Get a free property valuation from one of our experts.

Top