The Acorn Group is London’s largest multi-brand estate agency. We offer our clients the best brands, with the best people, in the best locations.

 

Close

OIEO £630,000 freehold

Semi-detached House for sale - Welling Way, DA16

Acorn are delighted to welcome to the market this extended four double bedroom family home, situated on a popularly, well connected road in Welling.

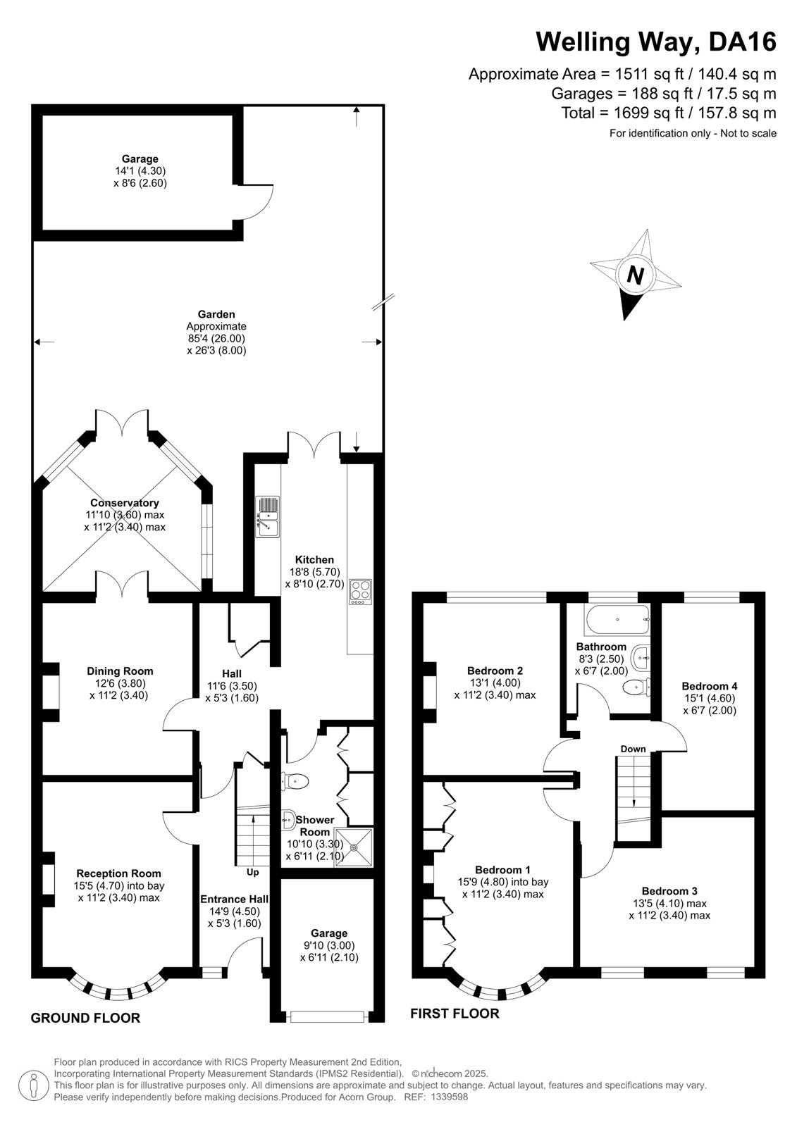
The accommodation consists of on the ground floor, entrance hallway leading through to lounge with rounded bay window, dining room leading onto the conservatory, shower room and extended kitchen/breakfast room. The first floor comprises four double bedrooms and family three piece bathroom suite.

Externally, the house offers ample off street parking for multiple cars to the front by the way of a black paved driveway, garage to side which is currently used for storage and an 85ft Southernly facing rear garden which is mainly lawn with paved patio area and garage at the rear which is currently used for storage.

Welling has fast become very desirable and offers everything you would expect from a local high street, including a wide range of supermarkets, shops, restaurants and pubs. Transport links are plentiful with bus routes to surrounding areas including Bexleyheath, Blackheath, North Greenwich (The O2) Bluewater and Abbey Wood with the Elizabeth Line. Welling and Falconwood Stations are equidistant at 0.8 miles away and offer direct links to London Bridge, Charing Cross, Cannon Street, Waterloo East & Victoria. Changes are possible at Lewisham for the DLR and New Cross for the East London Line. Oxleas Wood is close by as well as outstanding schools including Eastcote Primary School.

Tenure - Freehold
London Borough of Bexley - Council Tax Band - E
Energy Efficiency Rating - C

Talk to Matthew King from Acorn (Estate agents in Welling)

 

Use our calculator to work out potential mortgage repayments and stamp duty costs. Please note, these calculators are for general interest only and must not be relied on. Speak to our Mortgage Scout team for further information and advice. 

Powered by

Total Mortgage

£

Estimated Monthly Mortgage Payment

£

  • Powered by

Welling Area Guide

Explore the areas we serve – from parks, entertainment and transport links, to shopping, eating and drinking.

Dive into property knowledge

Visit the AcornIntel knowledge-base, our library of articles to help you make sense of all things property, or send your questions to our panel of property experts.

Get your property valued

Looking to sell or let your property? Get a free property valuation from one of our experts.

Top