The Acorn Group is London’s largest multi-brand estate agency. We offer our clients the best brands, with the best people, in the best locations.

 

Close

Guide price £450,000 freehold

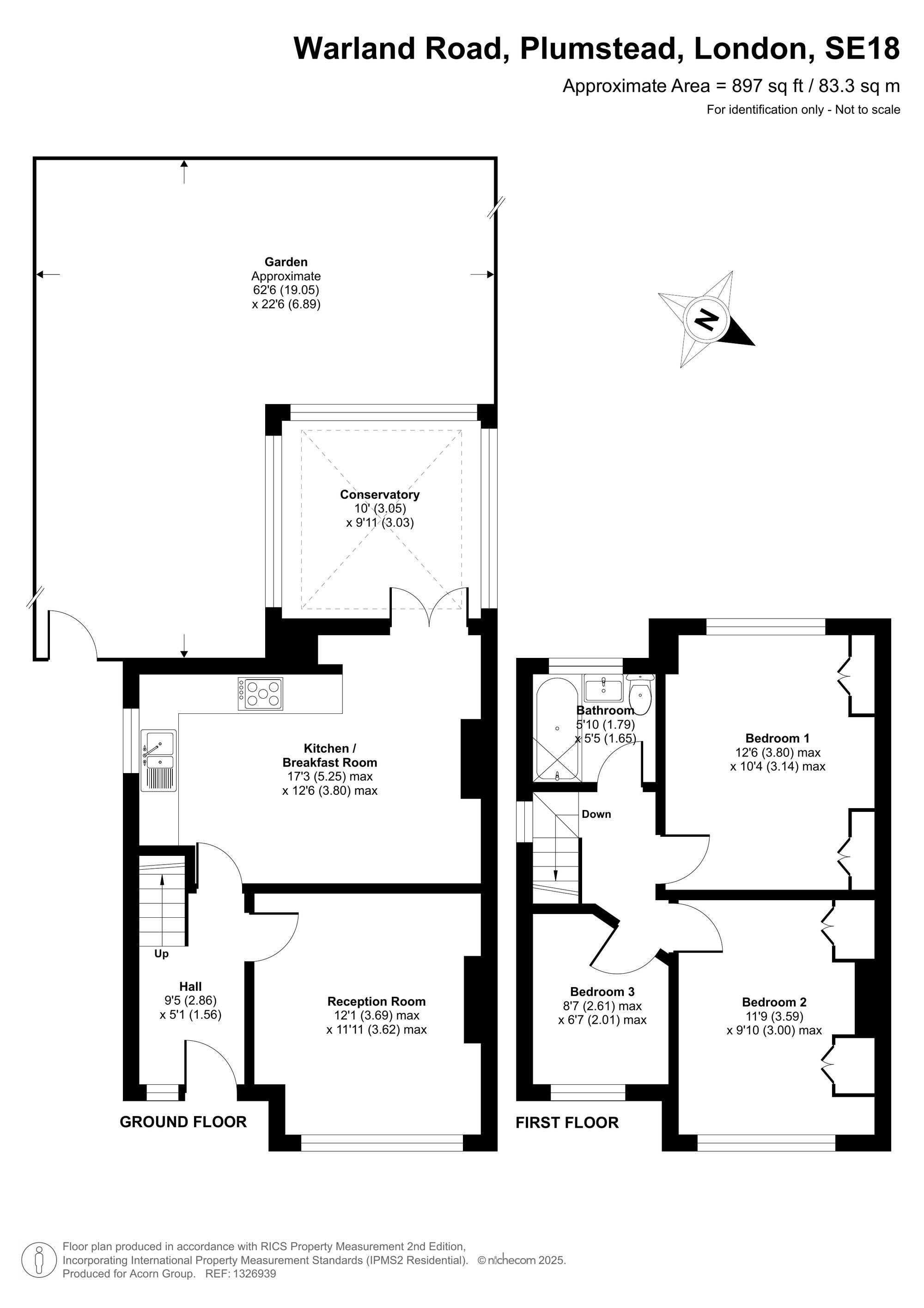
Semi-detached House for sale - Warland Road, SE18

*GUIDE PRICE £450,000-£475,000*

A well presented three bedroom 1930's style semi-detached family home located on the Plumstead/Welling borders. Convenient for local shops, schools and bus routes to Plumstead/Welling or Woolwich Stations.

The ground floor accommodation comprises a well presented front reception room with feature fireplace, double glazed window to the front and carpet as fitted. There is a 17ft kitchen/dining room fitted with a modern range of wall and base units with complimentary work surfaces. Integrated appliances and space for further. The property also benefits from a conservatory with wood laminate flooring and French doors leading to the rear garden.

To the first floor you will find three bedrooms. The front bedroom with stripped floorboards, built in wardrobes and double glazed windows offering pleasant views. The rear bedroom has carpet as fitted, built in wardrobes and double glazed windows overlooking the rear garden. The third bedroom is current set up as a home office but can easily be used as a third bedroom. There is a white three piece bathroom suite comprising a cistern enclosed WC, vanity wash hand basin, panelled bath with shower over and glass shower screen.

Externally there is a 62ft rear garden with paved patio area, raised lawn area and shed to the rear. Side access via a gate.

The property is ideally located for local schools, bus routes and open space. Only a short walk away you will find a small parade of local shops, bus stops (51 or 291) which lead into Woolwich & Welling. Ideal for mainline station, Woolwich DLR and Elizabeth Line.

Talk to William Chidley from John Payne (Estate agents in Plumstead Common)

 

Use our calculator to work out potential mortgage repayments and stamp duty costs. Please note, these calculators are for general interest only and must not be relied on. Speak to our Mortgage Scout team for further information and advice. 

Powered by

Total Mortgage

£

Estimated Monthly Mortgage Payment

£

  • Powered by

Area Guide

Explore the areas we serve – from parks, entertainment and transport links, to shopping, eating and drinking.

Dive into property knowledge

Visit the AcornIntel knowledge-base, our library of articles to help you make sense of all things property, or send your questions to our panel of property experts.

Get your property valued

Looking to sell or let your property? Get a free property valuation from one of our experts.

Top