The Acorn Group is London’s largest multi-brand estate agency. We offer our clients the best brands, with the best people, in the best locations.

 

Close

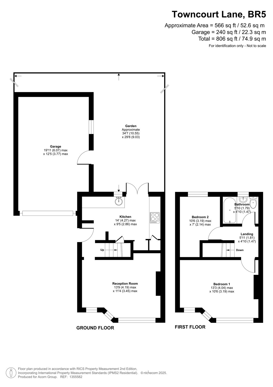
Asking price £450,000 freehold

Semi-detached House - Towncourt Lane, Orpington, BR5

Langford Russell are delighted to present this beautifully refurbished two-bedroom semi-detached home, ideally located in the heart of Petts Wood. Occupying a generous plot and offering exciting future potential to extend (STPP), this charming 1930s property is presented in immaculate condition throughout, ideal for buyers looking for a turnkey home with no renovation required.

The property has been thoughtfully updated to a high standard while retaining its original character. The ground floor comprises a bright and welcoming front-aspect lounge, complete with a feature fireplace and original stained-glass window. To the rear, a brand new, well-proportioned kitchen/diner has been installed, featuring a sleek integrated electric oven and hob. French doors open directly onto the garden, providing seamless indoor-outdoor living.

Upstairs, there are two generous bedrooms and a fully refurbished family bathroom, fitted with a modern white suite, new power shower, and stylish contemporary tiling. Brand new carpets have been laid throughout the home, enhancing the fresh and modern feel.

Externally, the property boasts a large rear garden with patio and lawn, perfect for outdoor entertaining, gardening, or future development. A brick-built garage offers ample space for a car and excellent storage or workshop space, while the private driveway comfortably accommodates up to three vehicles.

Key features include; Complete recent refurbishment throughout, brand new kitchen, new carpets and freshly decorated interiors, new gas central heating system and boiler, double glazing throughout, and a chain-free sale for a smooth and speedy transaction.

Perfectly positioned between Petts Wood mainline station and the highly regarded Crofton Schools (both rated Ofsted Outstanding), this home offers the ideal balance of connectivity and community. Petts Wood is a well-established residential area known for its village atmosphere, excellent transport links into Central London, and a vibrant high street with cafes, restaurants, independent shops, and access to Bromley’s wider retail offerings.

This is a rare opportunity to secure a stylish, move-in-ready home in one of the area’s most desirable locations. Early viewing is highly recommended.

Tenure: Freehold
Council Tax Band: D
Local Authority: London Borough of Bromley
EPC Rating: D

Talk to Oliver Pettman from Langford Russell (Estate agents in Orpington)

 

Use our calculator to work out potential mortgage repayments and stamp duty costs. Please note, these calculators are for general interest only and must not be relied on. Speak to our Mortgage Scout team for further information and advice. 

Powered by

Total Mortgage

£

Estimated Monthly Mortgage Payment

£

  • Powered by

Orpington Area Guide

Explore the areas we serve – from parks, entertainment and transport links, to shopping, eating and drinking.

Dive into property knowledge

Visit the AcornIntel knowledge-base, our library of articles to help you make sense of all things property, or send your questions to our panel of property experts.

Get your property valued

Looking to sell or let your property? Get a free property valuation from one of our experts.

Top