The Acorn Group is London’s largest multi-brand estate agency. We offer our clients the best brands, with the best people, in the best locations.

 

Close

Guide price £600,000 freehold

Semi-detached House for sale - The Underwood, SE9

** GUIDE PRICE £600,000 - £625,000 **

Offered Chain Free is this beautifully refurbished Three / Four bedroom end of terrace home with character features, generous living space & exceptional finish.

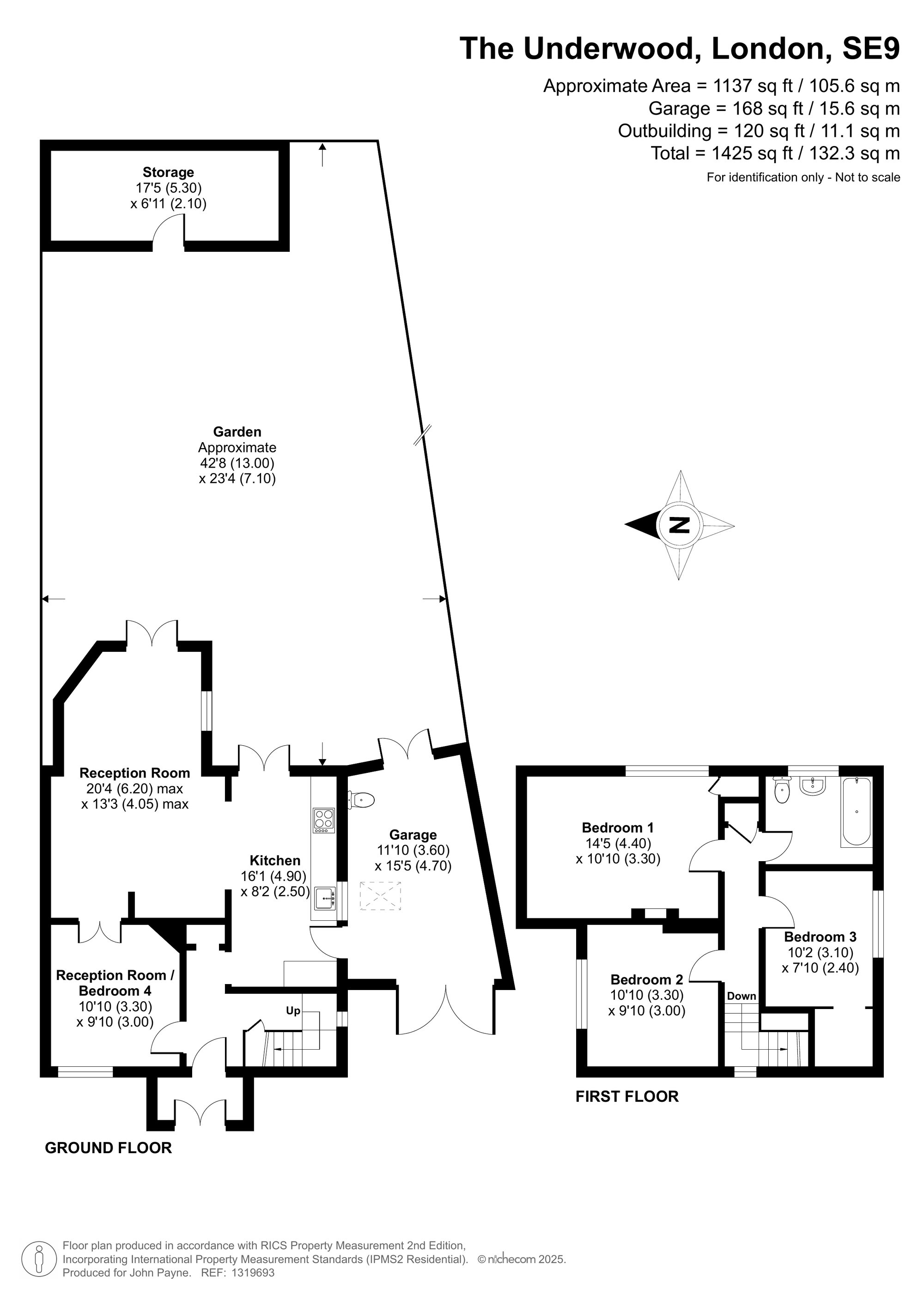
Set in a desirable and well-connected location, this picturesque and thoughtfully extended three-bedroom semi-detached home offers a unique blend of charm and modern luxury. Refurbished to an exceptional standard by the current owners, the property is brimming with character, showcasing exposed brick walls, steel beams, window lintels, and window sills throughout.

Inside, the ground floor is designed with contemporary open-plan living in mind, featuring stylish herringbone flooring and a plush, high-spec fitted kitchen with abundant storage. Large Crittall style doors flood the space with natural light and open directly onto the rear garden, perfect for indoor-outdoor living. Internal access leads to a generous garage/lean-to area, complete with a convenient downstairs W/C. For more formal occasions or flexible use, a separate dining room connects to the main living area via elegant French doors, allowing for open or zoned living. This room could also be a fourth bedroom, home office, study or even play room!

Upstairs, the property continues to impress with three spacious double bedrooms and a large, well-appointed family bathroom. Each room benefits from generous proportions and thoughtful design touches.
Outside, the landscaped rear garden offers a private retreat, featuring a newly laid patio with plenty of space for seating and entertaining, and a new lawn. To the rear sits a well sized outhouse—currently used for storage, but with excellent potential for use as a home office, gym, or workshop.
Further standout benefits include A new roof installed in the last 10-12 years, A spacious ‘In and Out’ driveway providing off-street parking for 2–3 cars & potential to extend further (subject to planning)
Located just 0.2 miles away from local shops and 0.6miles away from a leisure centre. Mottingham Station is only 0.7miles from your door providing direct access to London Bridge, Waterloo East, Charing Cross & Cannon Street. Changes are also possible at Lewisham for the DLR & New Cross for the East London Line. You’re also only 1.3 miles away from the beautiful Chislehurst High Street with its array of boutique shops, bars and restaurants makes this property ideal for anyone.

Being just over 350 yards to Greenacres Primary School and close to a wide selection of other schools also makes this the perfect home for a young family as well as first time buyers or investors.
This exceptional property is ready to move straight into and offers a rare combination of character, quality, and versatility. Ideal for families, professionals, or those looking for stylish, turn-key living, early viewing is highly recommended.

The Royal Borough of Greenwich - Council Tax Band - D
Energy Efficiency Rating - C

Talk to Oliver Henness from John Payne (Estate agents in Eltham)

 

Use our calculator to work out potential mortgage repayments and stamp duty costs. Please note, these calculators are for general interest only and must not be relied on. Speak to our Mortgage Scout team for further information and advice. 

Powered by

Total Mortgage

£

Estimated Monthly Mortgage Payment

£

  • Powered by

Eltham Area Guide

Explore the areas we serve – from parks, entertainment and transport links, to shopping, eating and drinking.

Dive into property knowledge

Visit the AcornIntel knowledge-base, our library of articles to help you make sense of all things property, or send your questions to our panel of property experts.

Get your property valued

Looking to sell or let your property? Get a free property valuation from one of our experts.

Top