The Acorn Group is London’s largest multi-brand estate agency. We offer our clients the best brands, with the best people, in the best locations.

 

Close

Guide price £350,000 freehold

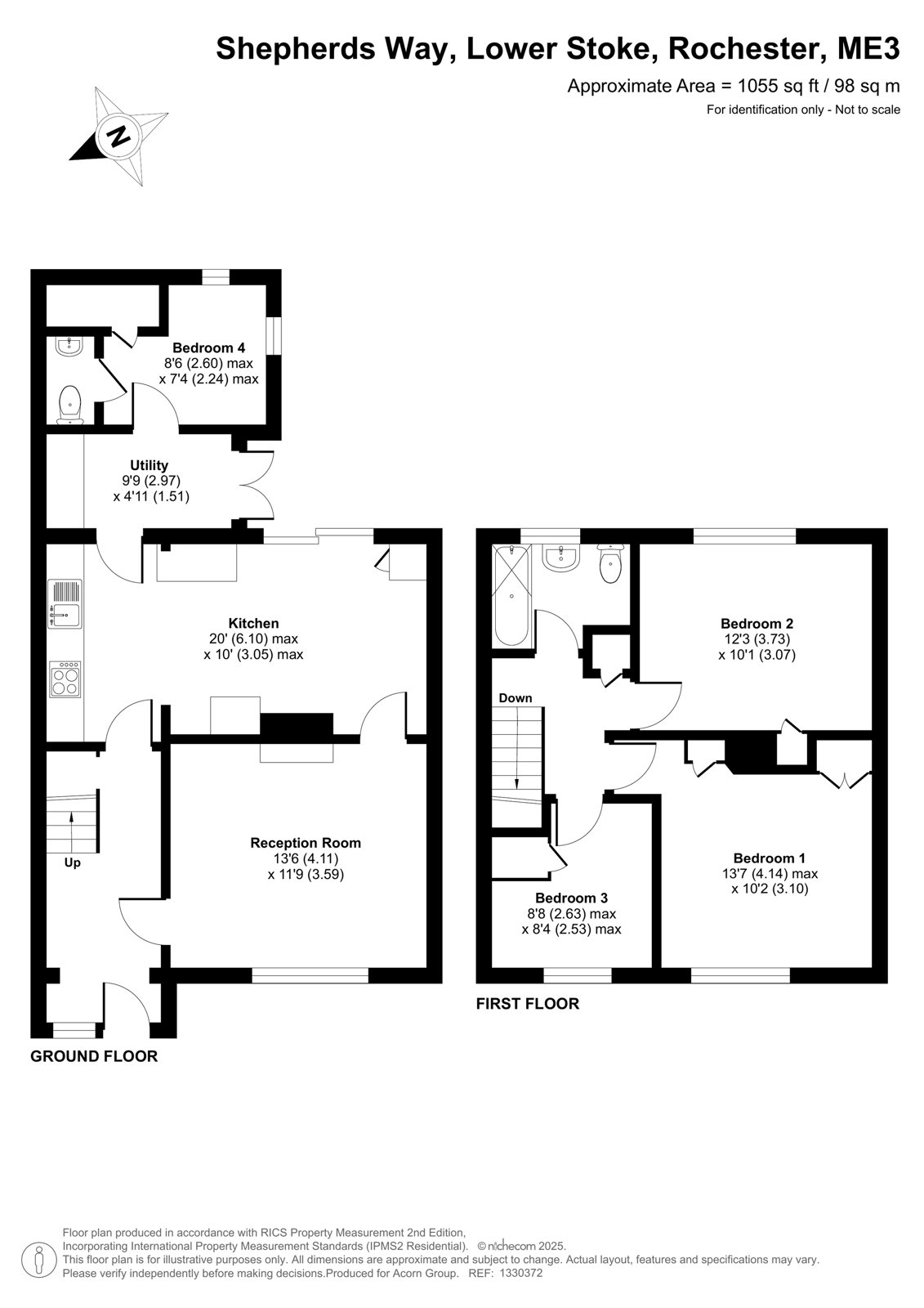
Semi-detached House for sale - Shepherds Way, Rochester, ME3

***GUIDE PRICE £350,000 - £375,000***

Situated in the village of Lower Stoke is this superb three bedroom semi-detached family home with a driveway providing off road parking.

This property could be your ideal family home and comprises an entrance hall, a living room, an open plan kitchen/dining room, a utility area and a home office with a cloakroom on the ground floor with three bedrooms and a family bathroom on the first floor.

Externally there is a garden to the rear of the property with a mixture of lawn and patio so ideal for children to play or for entertaining guests in the summer. There is a driveway to the front of the property providing off road parking and access to the side of the property leading to the garden.

This property is offered to the market with no onward chain.

Call the Acorn group today to secure your viewing appointment.

Medway Council - Council Tax Band - B
Energy Efficiency Rating - C

Talk to Mark Sugarman from Acorn (Estate agents in Strood)

 

Use our calculator to work out potential mortgage repayments and stamp duty costs. Please note, these calculators are for general interest only and must not be relied on. Speak to our Mortgage Scout team for further information and advice. 

Powered by

Total Mortgage

£

Estimated Monthly Mortgage Payment

£

  • Powered by

Strood Area Guide

Explore the areas we serve – from parks, entertainment and transport links, to shopping, eating and drinking.

Dive into property knowledge

Visit the AcornIntel knowledge-base, our library of articles to help you make sense of all things property, or send your questions to our panel of property experts.

Get your property valued

Looking to sell or let your property? Get a free property valuation from one of our experts.

Top