The Acorn Group is London’s largest multi-brand estate agency. We offer our clients the best brands, with the best people, in the best locations.

 

Close

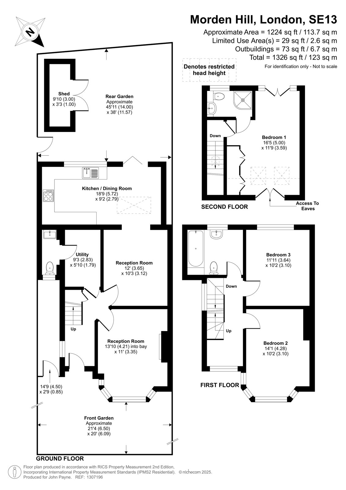
Guide price £875,000 freehold

Semi-detached House - Morden Hill, SE13

A tastefully modernised, three double bedroom 1920's semi-detached family house situated in a quiet cul-de-sac just a short walk from the open heath and approximately a quarter of a mile from Lewisham mainline station and D.L.R.

The house has been substantially updated by its current owners and benefits from a fabulous loft conversion providing a bright, spacious bedroom with its own en-suite and there are two further double bedrooms, a family bathroom and a generous study area.

On the ground floor the house benefits from a large rear extension which provides a large, bright Kitchen/breakfast room which is open-plan to a reception room, a separated and very useful utility room and there is an inviting, cosy reception room at the front of the house.
Outside there is an attractive garden to the rear and front.

London Borough of Lewisham - Council Tax Band - E
Energy Efficiency Rating - D

Talk to Richard O'Toole from John Payne (Estate agents in Blackheath)

 

Use our calculator to work out potential mortgage repayments and stamp duty costs. Please note, these calculators are for general interest only and must not be relied on. Speak to our Mortgage Scout team for further information and advice. 

Powered by

Total Mortgage

£

Estimated Monthly Mortgage Payment

£

  • Powered by

Blackheath Area Guide

Explore the areas we serve – from parks, entertainment and transport links, to shopping, eating and drinking.

Dive into property knowledge

Visit the AcornIntel knowledge-base, our library of articles to help you make sense of all things property, or send your questions to our panel of property experts.

Get your property valued

Looking to sell or let your property? Get a free property valuation from one of our experts.

Top