The Acorn Group is London’s largest multi-brand estate agency. We offer our clients the best brands, with the best people, in the best locations.

 

Close

OIEO £475,000 freehold

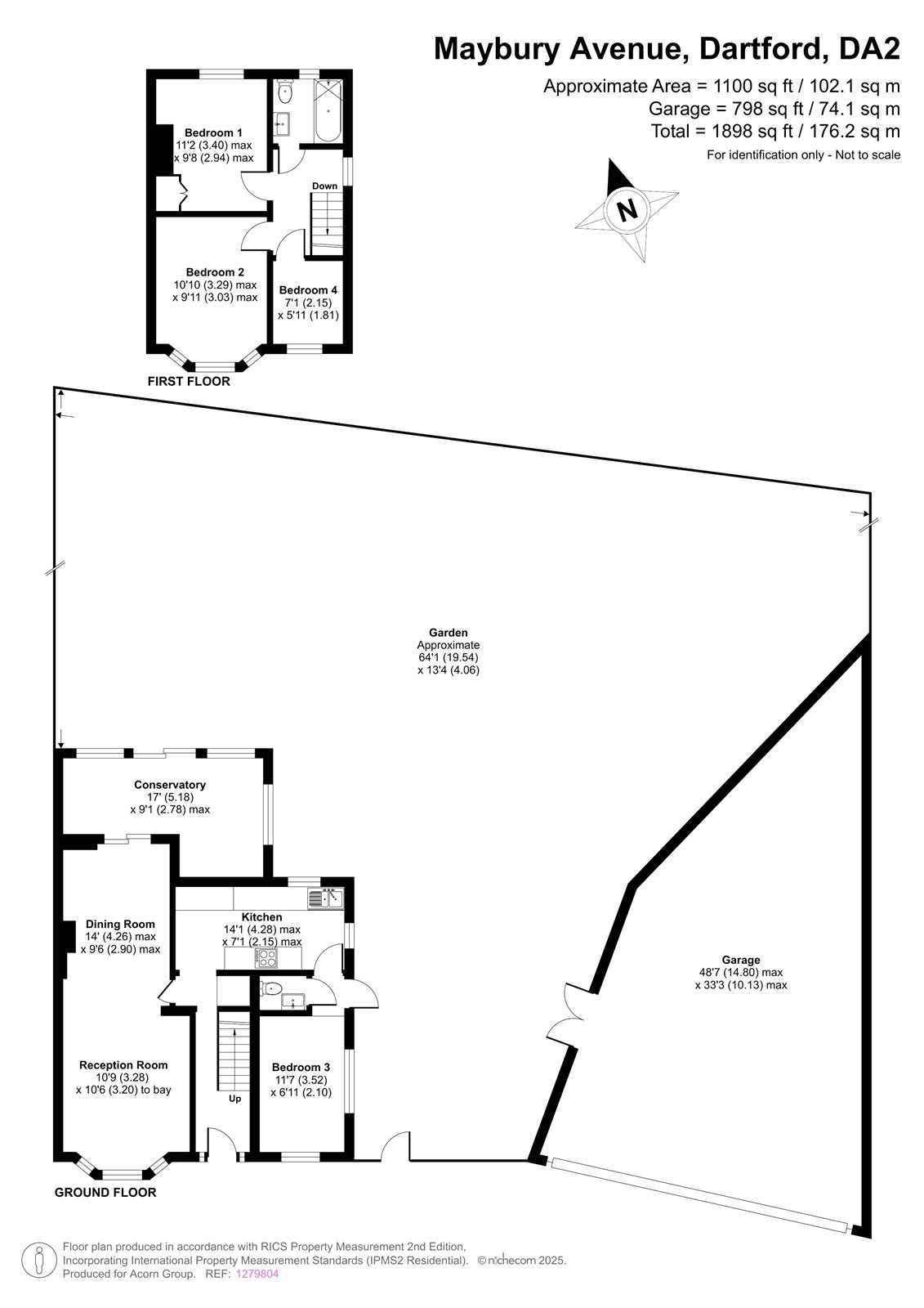
Semi-detached House for sale - Maybury Avenue, Kent, DA2

Charming four-bedroom semi-detached house located on the sought after Fleet estate. Boasting a spacious garden, off-street parking, and a large, convenient annex workshop. Perfect for families seeking a tranquil living environment with easy access to local amenities and schools.

Meticulously designed for modern living, this well-presented semi-detached home offers a perfect blend of style and functionality. The property boasts a beautiful garden, ideal for outdoor entertaining or relaxation. With the convenience of off-street parking for at least 2 vehicles, you can easily accommodate your vehicles and guests. The interior of the house is thoughtfully designed with spacious rooms and high-quality finishes throughout. Additionally, the property features a versatile ground floor bedroom that can be used as a guest suite or home office, providing flexibility to suit your lifestyle needs.

Outside, the south facing garden offers a large, spacious garage which features a dedicated workshop area with ample room. It is the perfect space for anyone to utilise as a workshop, storage, home office or gym.

This home is perfect for those seeking a stylish and comfortable living space in a prime location. Don't miss the opportunity to make this exceptional property your own. Contact us today to arrange a viewing

Tenure – Freehold
Council Tax Band – D
Energy Efficiency Rating – D

Talk to Daniel Langiano from Acorn (Estate agents in Dartford)

 

Use our calculator to work out potential mortgage repayments and stamp duty costs. Please note, these calculators are for general interest only and must not be relied on. Speak to our Mortgage Scout team for further information and advice. 

Powered by

Total Mortgage

Β£

Estimated Monthly Mortgage Payment

Β£

  • Powered by

Dartford Area Guide

Explore the areas we serve – from parks, entertainment and transport links, to shopping, eating and drinking.

Dive into property knowledge

Visit the AcornIntel knowledge-base, our library of articles to help you make sense of all things property, or send your questions to our panel of property experts.

Get your property valued

Looking to sell or let your property? Get a free property valuation from one of our experts.

Top