The Acorn Group is London’s largest multi-brand estate agency. We offer our clients the best brands, with the best people, in the best locations.

 

Close

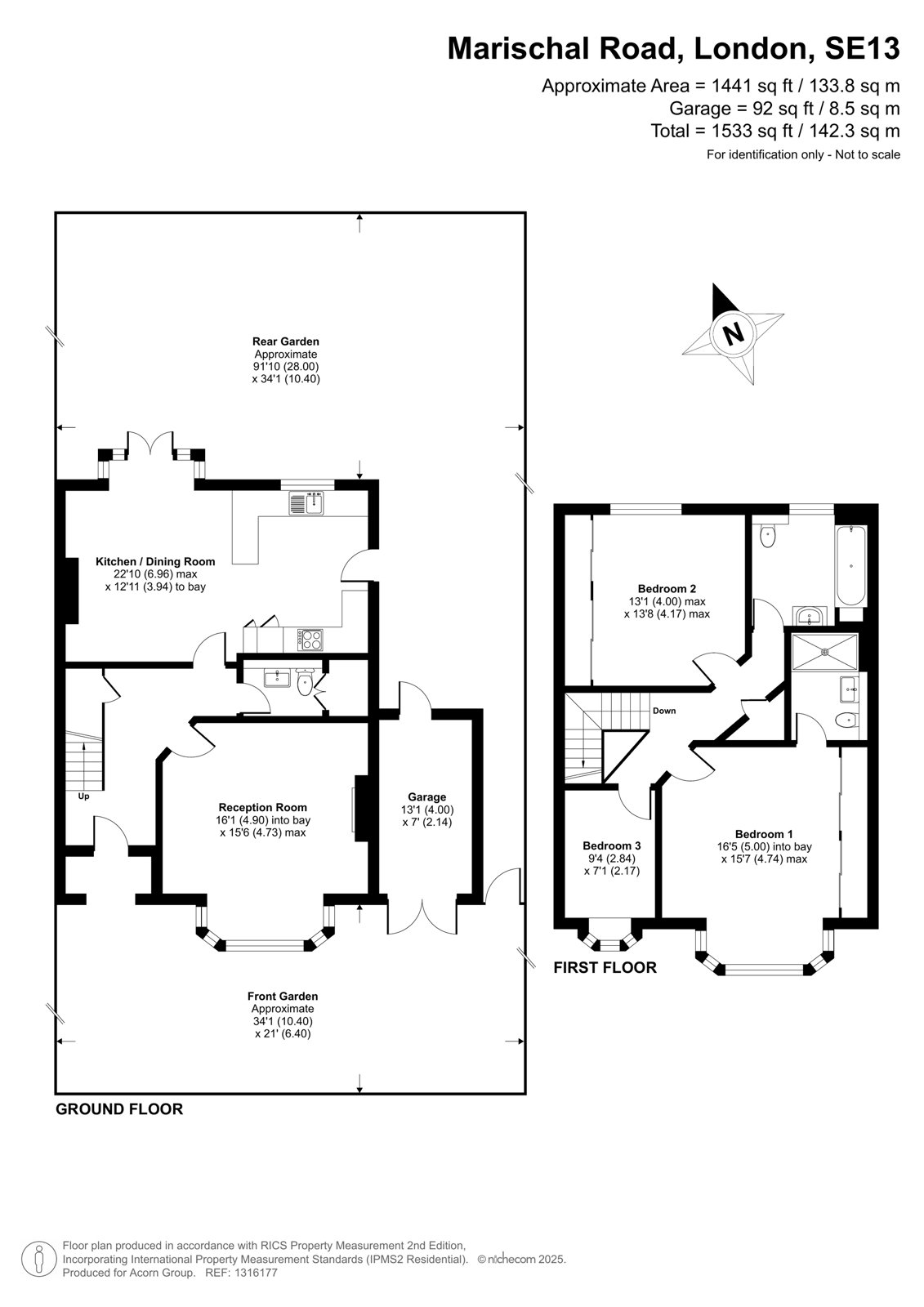
Guide price £995,000 freehold

Semi-detached House for sale - Marischal Road, SE13

This beautifully refurbished 1920s semi-detached family home is a standout example of thoughtful, high-quality restoration.
Set on a peaceful, elevated street in SE13, the property has been upgraded throughout to create a spacious, three-bedroom home that’s truly turnkey.

Upstairs, you’ll find three well-proportioned bedrooms - two generous doubles and a comfortable third - along with a luxurious family bathroom and an en-suite shower room to the principal bedroom.
On the ground floor, the original stained and leaded glass front door opens into a large, bright hallway leading to both reception rooms and into a spacious open-plan kitchen, dining and breakfast area to the rear. This leads directly onto a large raised terrace and a generous garden beyond, ideal for entertaining, relaxing, and family life.
To the front, there’s off-street parking with an EV charging point and an attached garage. The property also benefits from a fully boarded loft, offering excellent storage and potential for future conversion.

Perfectly positioned for both convenience and lifestyle, the home is just minutes from Lewisham station for fast connections into Central London, with both mainline and DLR services close by. Blackheath and Greenwich are also within walking distance, offering green spaces, independent shops and restaurants.

This is a home that blends period charm with modern comfort. Ideal for growing families or anyone looking to settle somewhere special in SE13.

London Borough of Lewisham - Council Tax Band - E
Energy Efficiency Rating - D

Talk to Richard O'Toole from John Payne (Estate agents in Blackheath)

 

Use our calculator to work out potential mortgage repayments and stamp duty costs. Please note, these calculators are for general interest only and must not be relied on. Speak to our Mortgage Scout team for further information and advice. 

Powered by

Total Mortgage

£

Estimated Monthly Mortgage Payment

£

  • Powered by

Blackheath Area Guide

Explore the areas we serve – from parks, entertainment and transport links, to shopping, eating and drinking.

Dive into property knowledge

Visit the AcornIntel knowledge-base, our library of articles to help you make sense of all things property, or send your questions to our panel of property experts.

Get your property valued

Looking to sell or let your property? Get a free property valuation from one of our experts.

Top