The Acorn Group is London’s largest multi-brand estate agency. We offer our clients the best brands, with the best people, in the best locations.

 

Close

OIEO £550,000 freehold

Semi-detached House - Lower Gravel Road, BR2

Situated in the heart of Bromley Common is this stunning three-bedroom semi-detached home. Refurbished to a high standard and located on a quiet road, the property will make an ideal home for any growing family.

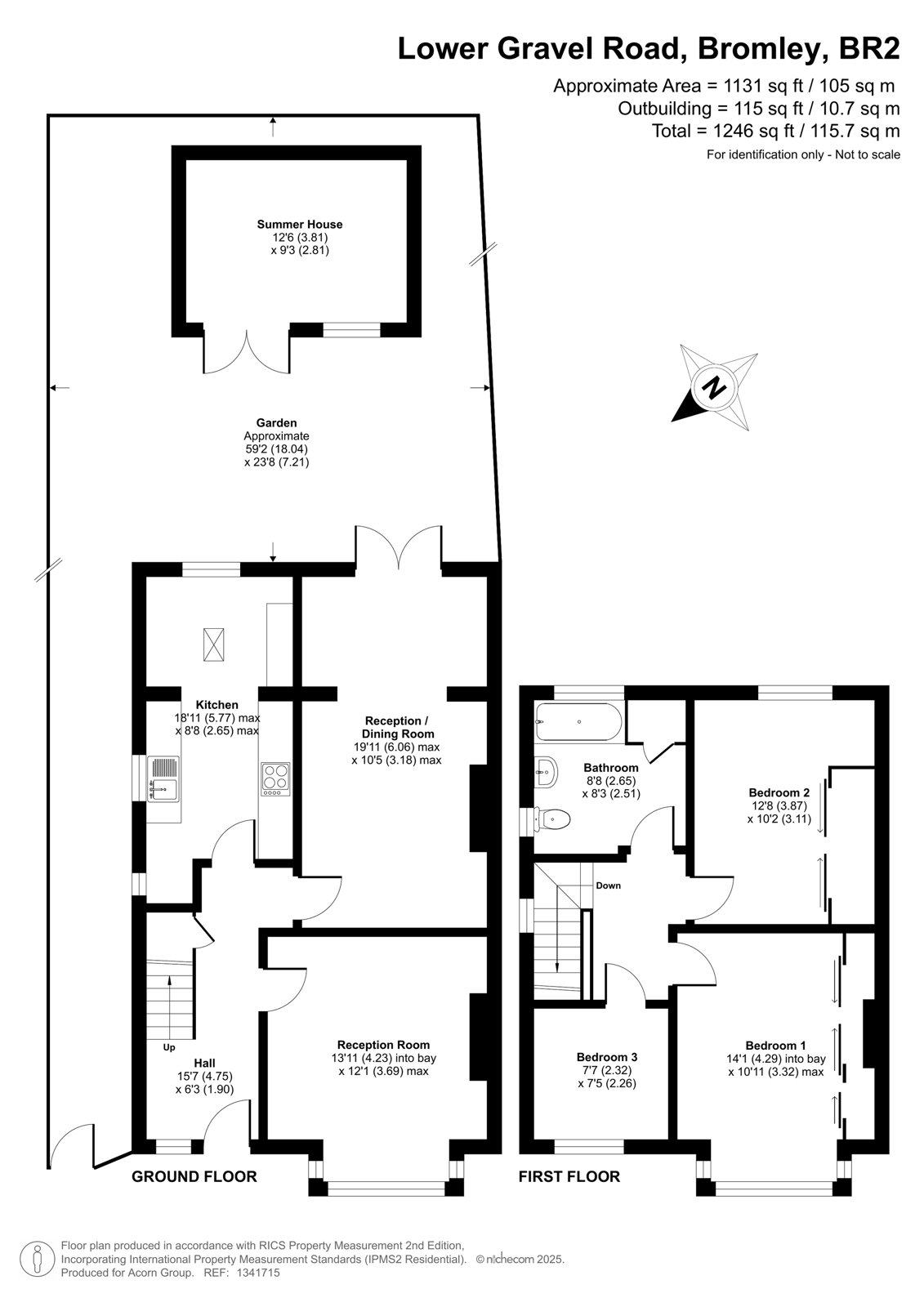
Internally, the property comprises; spacious entrance hall, neutrally decorated reception room to the front and separate reception/dining room which overlooks the gardens. The kitchen benefits from well-maintained white units, grey splash back tiles, wood flooring. Upstairs boasts two excellent size double bedrooms and a smaller, but still good size, single. The master and second bedroom both benefits from having built in wardrobes. The modern three-piece family bathroom has been done to a good specification which also has great storage. Other benefits include off street parking for several cars, rear garden measuring around 60ft and further potential for expansion into the loft, subject to the usual planning consents.

Lower Gravel Road is a popular tree lined road located just of Hastings Road in the heart of Bromley Common. Local shops are within walking distance plus Locksbottom village provides further shops, restaurants and coffee shops. Bromley town centre is a short drive or bus journey away with its shopping centre, cinema and mainline station offering services into London (in under 20 minutes). Local schools are fantastic with the property falling within the catchment for Ofsted outstanding Darrick Wood primary and secondary.

Tenure - Freehold | Council Tax Band - E

Talk to Jake Fahey from Langford Russell (Estate agents in Bromley)

 

Use our calculator to work out potential mortgage repayments and stamp duty costs. Please note, these calculators are for general interest only and must not be relied on. Speak to our Mortgage Scout team for further information and advice. 

Powered by

Total Mortgage

£

Estimated Monthly Mortgage Payment

£

  • Powered by

Bromley Area Guide

Explore the areas we serve – from parks, entertainment and transport links, to shopping, eating and drinking.

Dive into property knowledge

Visit the AcornIntel knowledge-base, our library of articles to help you make sense of all things property, or send your questions to our panel of property experts.

Get your property valued

Looking to sell or let your property? Get a free property valuation from one of our experts.

Top