The Acorn Group is London’s largest multi-brand estate agency. We offer our clients the best brands, with the best people, in the best locations.

 

Close

Guide price £450,000 freehold

Semi-detached House - Leverholme Gardens, SE9

** GUIDE PRICE - £450,000 - £475,000 **

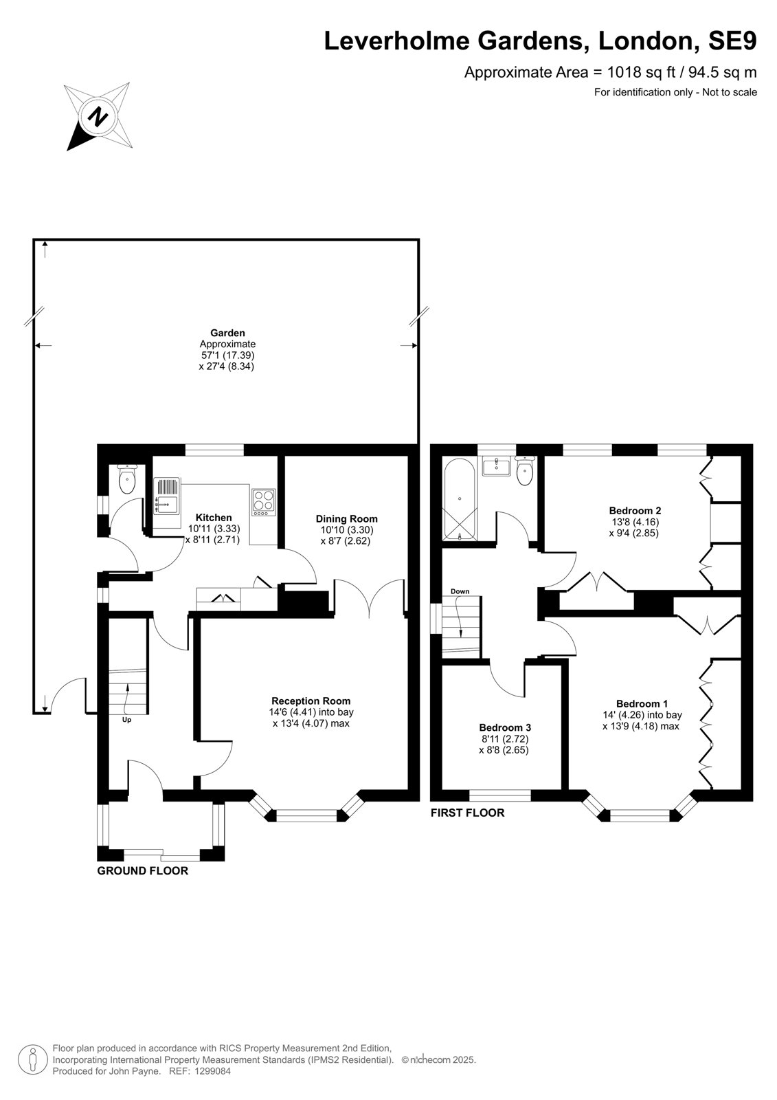
Offered Chain Free is this three double bedroom semi-detached house with off street parking, on a quiet residential road in SE9, very close to Chislehurst!

An exciting opportunity to own a home that has been within the current family for over five decades! The property presents itself to somebody looking to really add their own stamp to their next home, with plenty of options to modernise and extend (STPP). Internally the property comprises: an entrance hall, a large living room with a bay window, a large kitchen fully fitted with base and wall units, a downstairs W.C, side access door and a dining room that leads out to the garden via sliding doors.

To the first floor you will find a three-piece bathroom and three double bedrooms, the master of which with a bay window. Externally you have the front and rear gardens, the front with a driveway and the rear being mostly laid to lawn but also with a side access and a shed.

Further benefits include gas central heating, double-glazing, off-street parking and side access to the garden.

Being just over a mile away from both Elmstead Woods station and New Eltham Station offering direct access into London Bridge, Waterloo East, Cannon Street & Charing Cross. Changes are also possible Lewisham for the DLR & New Cross for the East London Line. You’re also only 0.8 miles away from the beautiful Chislehurst High Street with its array of boutique shops, bars and restaurants makes this property ideal for anyone. Also within short distance to a huge variety of schools for consideration!

The Royal Borough of Greenwich - Council Tax Band - D
Energy Efficiency Rating - D

Talk to Oliver Henness from John Payne (Estate agents in Eltham)

 

Use our calculator to work out potential mortgage repayments and stamp duty costs. Please note, these calculators are for general interest only and must not be relied on. Speak to our Mortgage Scout team for further information and advice. 

Powered by

Total Mortgage

£

Estimated Monthly Mortgage Payment

£

  • Powered by

Eltham Area Guide

Explore the areas we serve – from parks, entertainment and transport links, to shopping, eating and drinking.

Dive into property knowledge

Visit the AcornIntel knowledge-base, our library of articles to help you make sense of all things property, or send your questions to our panel of property experts.

Get your property valued

Looking to sell or let your property? Get a free property valuation from one of our experts.

Top