The Acorn Group is London’s largest multi-brand estate agency. We offer our clients the best brands, with the best people, in the best locations.

 

Close

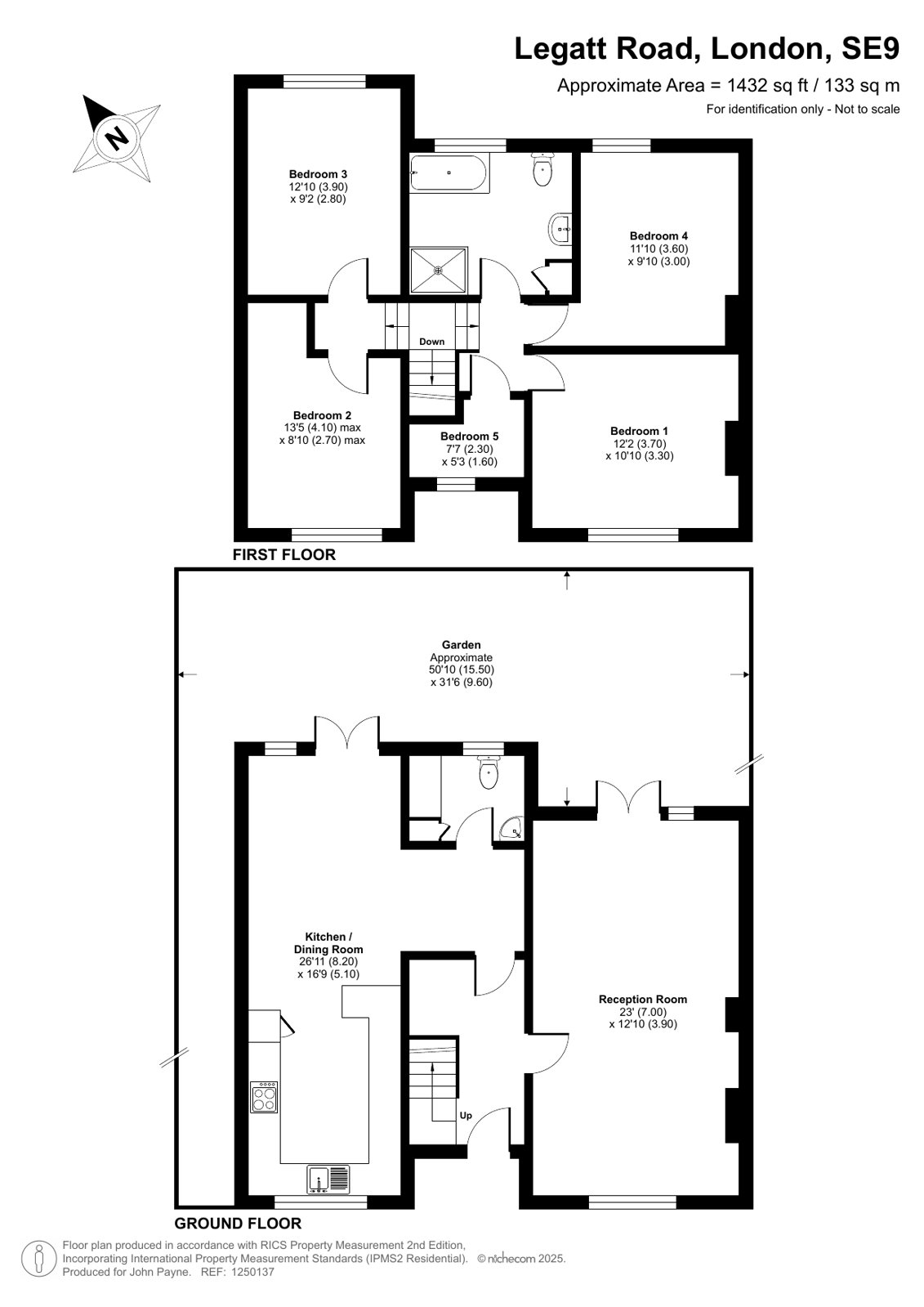
Guide price £650,000 freehold

Semi-detached House - Legatt Road, SE9

** GUIDE PRICE £650,000 - £675,000 **

Positioned on quiet residential street in Eltham, extended within the last 8 years now presenting itself as a large, 4/5-bedroom end of terrace, Family Home with off street parking for multiple cars!

Measuring 1432sqft approx., offering an abundance of space in every single room! On entering, you’re welcomed by an entrance hall opening into an enormous dual aspect reception room, as well as a front to back kitchen/diner, both of which have French doors leading out on the homes garden. The ground floor also benefits from a utility room with W/C!

To the first floor you will find 5 bedrooms, 4 of which are large doubles, the fifth is currently set up as a walk in wardrobe & a four-piece family bathroom!

The garden features a recently laid patio, big enough for a garden furniture set to enjoy / entertain in warmer weather and a large area laid to lawn.

Further benefits include off street parking for 3+ cars, double glazing, and central heating throughout.

Located only 0.8 miles from Kidbrooke Station (and 0.9 from Eltham) offering access to London Bridge, Cannon Street, Charing Cross, Nunhead, Peckham Rye, Denmark Hill & London Victoria. Changes are also possible at Lewisham for the DLR & at New Cross for the East London Line. Both the A2 & A20 are accessible within a few minutes drive and provide easy access in to Central London & Kent via car!

Eltham High Street can be found a short distance away and offers comprehensive shopping, bars, restaurants and the recently built Vue cinema. As well as this there is a variety of locally renowned shops and the Tudor Barn, a popular local gastro pub, located on Well Hall Road.

Talk to Oliver Henness from John Payne (Estate agents in Eltham)

 

Use our calculator to work out potential mortgage repayments and stamp duty costs. Please note, these calculators are for general interest only and must not be relied on. Speak to our Mortgage Scout team for further information and advice. 

Powered by

Total Mortgage

£

Estimated Monthly Mortgage Payment

£

  • Powered by

Eltham Area Guide

Explore the areas we serve – from parks, entertainment and transport links, to shopping, eating and drinking.

Dive into property knowledge

Visit the AcornIntel knowledge-base, our library of articles to help you make sense of all things property, or send your questions to our panel of property experts.

Get your property valued

Looking to sell or let your property? Get a free property valuation from one of our experts.

Top